Skip to content

4 Beds

3 Bathrooms

2,310 Building Sqft

1,800 Lot Sqft

$1,850,000

211 29th Street, Brooklyn, New York, 11232

About 211 29th Street

Active Multi-Family

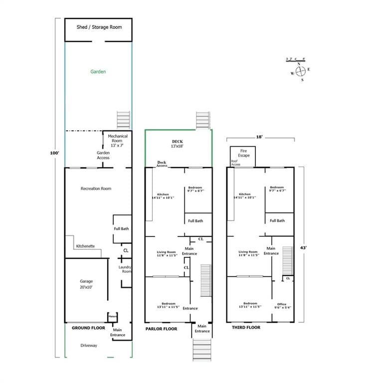
Welcome home to this elegant three-level two family brick home with private driveway and garage in the heart of Greenwood.

Enter the parlor floor with high ceilings to find a spacious living room, twos bedrooms (or one bedroom with office), one full bath and a full eat-in kitchen. Exit the parlor floor kitchen and enjoy your morning coffee, afternoon art session or evening barbecue with family and friends on your beautiful rear deck and garden access below.

The top level of this light filled home features a living room, eat-in kitchen, two generously sized bedrooms, a separate office space, a full bathroom, linen closet and skylight above the staircase. The third room will make an ideal home-office, children’s room.

The ground/lower level of the home is a welcome addition. This space is large enough to entertain friends and family, keep a large group of kids busy or a make a great home-gym. It would also make an ideal private office or work from home space thanks to the large windows and separate front entrance from the street. It has a bathroom, laundry room as well as a mechanical room with access to the rear garden.

This great location sits at the crossroads of the happening bar and restaurant scene of the South Slope and transformative Industry City. At Industry City, enjoy the Food Hall with purveyors such as Park Slope classic Colson’s Patisserie, Sahadis, Japan Village and much more. Indulge in shopping, play mini-golf, ping pong and explore the 35-acres of water-front innovation. Grab a cupcake at Baked in Brooklyn and slice from Luigi’s on 5th Ave.
The R train at 25th Street is just minutes away, while the nearby D/R/N express at 36th Street shuttles passengers into Manhattan. With all of this and more at your fingertips, come fall in love with Greenwood Heights!
Future expansion is a possibility with unused FAR, R6B Zoning.

Features of 211 29th Street

MLS® #
500546
Bedrooms
4
Bathrooms
3
Acres
0.04
Type
Residential
Price
$1,850,000
Building Sqft
2,310
Year Built
1905
Sub-Type
Multi-Family

Community Information

Address
211 29th Street
City
Brooklyn
County
Kings (Brooklyn)
State
New York
Zip Code
11232

Listing Information

Agent Name
Ali Tom
Agent Office
Bellmarc

Listing Map

Get Directions to Property:

At a Glance

211 29th Street

Brooklyn, New York, 11232

$1,850,000

4 Beds

3 Bathrooms

2,310 Building Sqft

1,800 Lot Sqft

Contact Agent