Skip to content

6 Beds

3 Bathrooms

-- Building Sqft

1,700 Lot Sqft

$1,495,000

425 36th Street, Brooklyn, New York, 11232

About 425 36th Street

Active Multi-Family

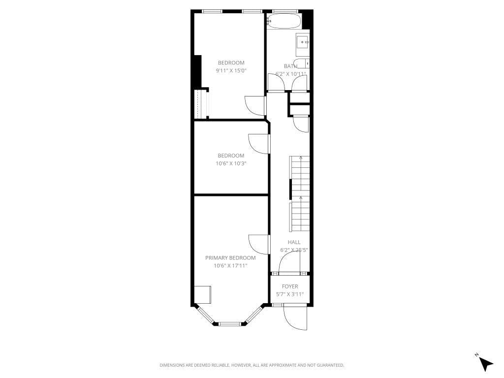
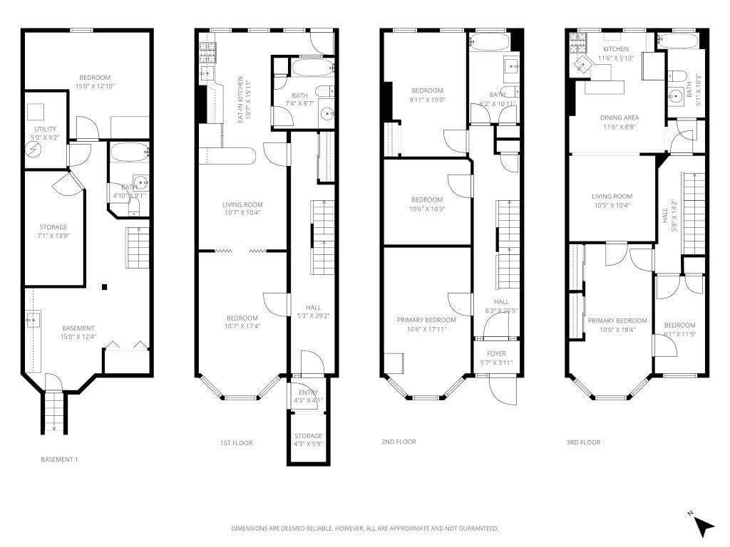
Well maintained brick multi-family home with 3 stories and fully finished basement with separate entrance. Currently configured with 3 apartments offering living and income potential. Hardwood floors, gas heat and hot water, private fenced backyard, solid block foundation and street parking. Prime location minutes from the R train, as well as to Manhattan and Downtown Brooklyn, close to schools, shopping and transportation. This property includes a third-floor, two-bedroom apartment that is currently occupied by tenants.

Features of 425 36th Street

MLS® #
498843
Bedrooms
6
Bathrooms
3
Acres
0.04
Type
Residential
Price
$1,495,000
Sub-Type
Multi-Family

Community Information

Address
425 36th Street
City
Brooklyn
County
Kings (Brooklyn)
State
New York
Zip Code
11232

Listing Information

Agent Name
Evelyn Garcia
Agent Office
RE/MAX Edge

Listing Map

Get Directions to Property:

At a Glance

425 36th Street

Brooklyn, New York, 11232

$1,495,000

6 Beds

3 Bathrooms

0 Building Sqft

1,700 Lot Sqft

Contact Agent