Skip to content

5 Beds

3 Bathrooms

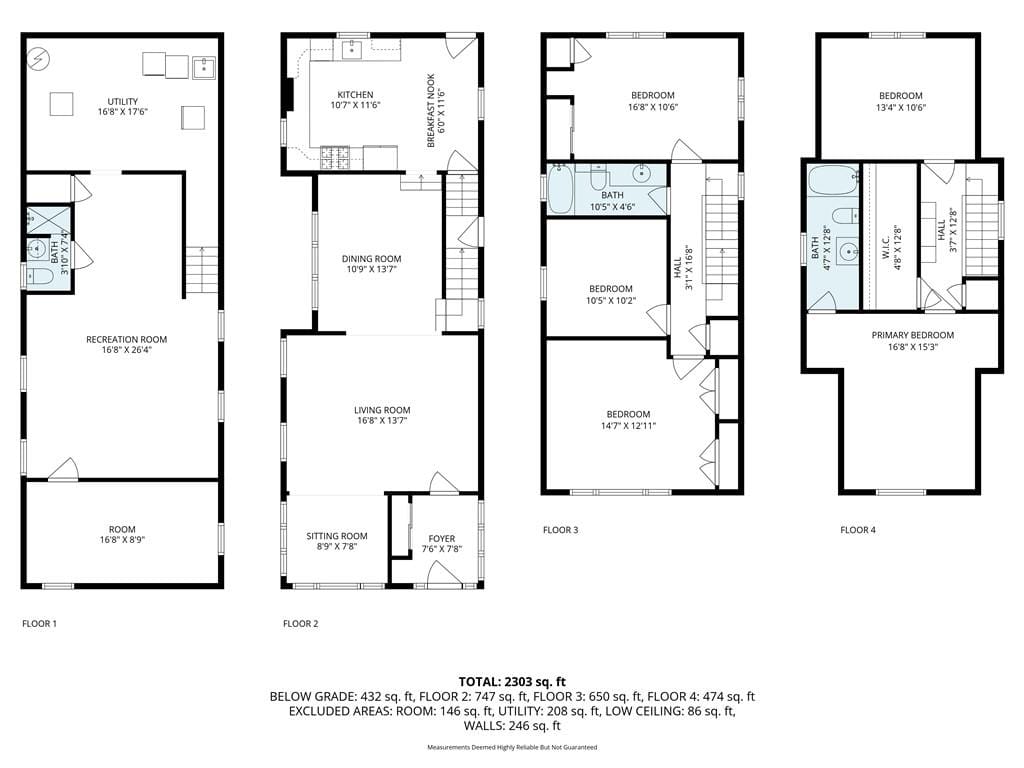
2,088 Building Sqft

3,000 Lot Sqft

$1,545,000

1040 84th Street, Brooklyn, New York, 11228

About 1040 84th Street

Active Single Family

Charming Fully Detached Home in Dyker Heights, Brooklyn
Unlock the potential of a classic Brooklyn residence! This spacious 5-bedroom home offers over 2,000 sq ft of comfortable living space, filled with natural light and brimming with original architectural details. From beautiful woodwork and moldings to vintage tilework and fixtures, every corner reflects timeless elegance and character.
The classic kitchen layout and open living/dining areas are ready for your creative touch, making this the perfect canvas to restore and personalize. Enjoy 2 ¾ bathrooms with period charm, a finished basement with renovation potential, and a generous 30 x 100 ft lot—ideal for outdoor activities or future expansion
Relax in your private backyard or take advantage of the detached garage and dedicated parking space for added convenience. Located on a picturesque, tree-lined street in the heart of Dyker Heights, you’ll have easy access to parks, well-regarded schools, shopping, dining, and public transportation. Experience the warmth of a close-knit community and the neighborhood’s iconic holiday light displays.
This is a unique opportunity to restore and reimagine an authentic Dyker Heights residence. This is one of the very few fully detached homes currently for sale in PRIME Dyker Heights. Prospective buyers are invited to schedule a private tour to explore its full potential.

Features of 1040 84th Street

MLS® #
497194
Bedrooms
5
Bathrooms
3
Acres
0.07
Type
Residential
Price
$1,545,000
Building Sqft
2,088
Year Built
1920
Sub-Type
Single Family

Community Information

Address
1040 84th Street
City
Brooklyn
County
Kings (Brooklyn)
State
New York
Zip Code
11228

Listing Information

Agent Name
Barbara Piazza
Agent Office
Piazza Realty, LLC

Listing Map

Get Directions to Property:

At a Glance

1040 84th Street

Brooklyn, New York, 11228

$1,545,000

5 Beds

3 Bathrooms

2,088 Building Sqft

3,000 Lot Sqft

Contact Agent