Skip to content

4 Beds

3 Bathrooms

-- Building Sqft

22,651 Lot Sqft

$799,900

1040 Hillside Drive, North Brunswick, NJ, 08902

About 1040 Hillside Drive

Active Single Family Residence

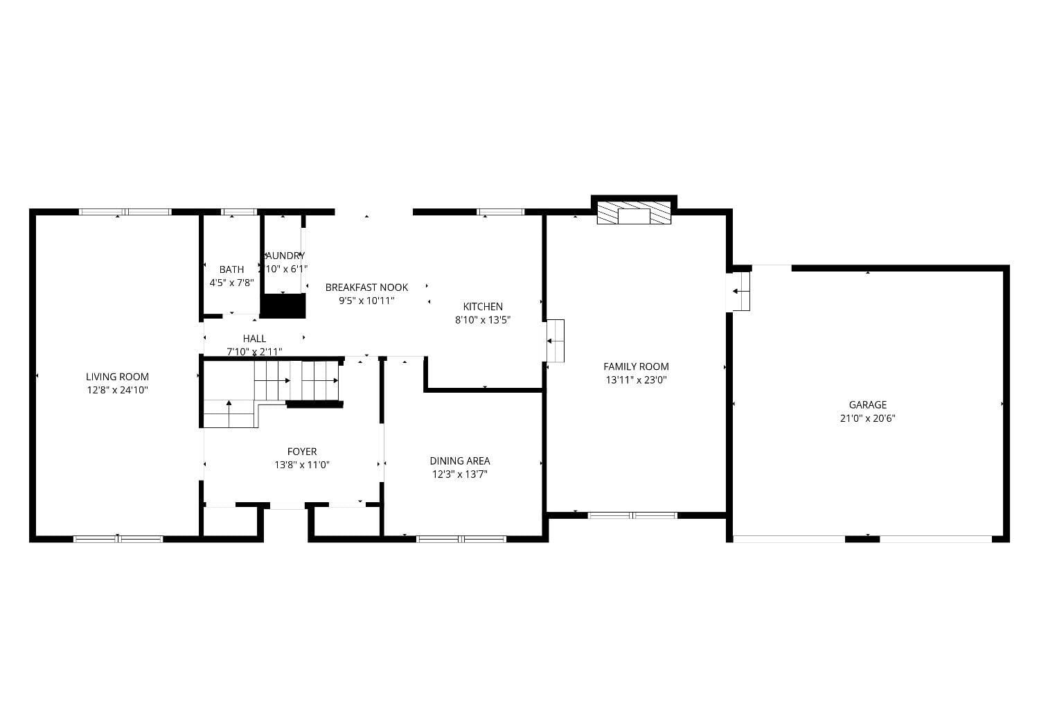
Elegant 4-bedroom, 2.5-bath center hall Colonial offering the perfect blend of space, functionality, and timeless style in a sought-after neighborhood. Curb appeal abounds with the stone garden walls gracing the entire front of the home. A paver entry path leads to the front door. A welcoming foyer with twin coat closets greets you as you enter. The traditional center hall layout features a spacious formal living room and formal dining room, both highlighted by hardwood floors and decorative molding. The bright kitchen is well appointed with cherry cabinetry, Corian countertops, stainless steel appliances including a French-door refrigerator, vented range hood, and a convenient pantry closet along with a breakfast nook. There’s a conveniently located laundry room in addition to a powder room on this area. Sliding doors in the breakfast nook area leads down to a large concrete patio and expansive, level backyard with storage shed, ideal for outdoor entertaining and everyday enjoyment. Just off the kitchen, the sunken family room offers overhead lighting and a charming wood-burning fireplace set against a brick accent wall with mantle and hearth. This cozy family room also provides direct access to the oversized two-car garage with a rear door to the yard. Upstairs, all four bedrooms feature hardwood floors and overhead lighting. The spacious primary suite includes a walk-in closet and a ensuite bath with cherry vanity, granite countertop, tile floors and walls, vent fan, and a step-in shower with clear glass doors. The updated hall bath offers a cherry vanity with granite top, tiled tub/shower, wall and floor tile, linen closet, vanity lighting, and vent fan. The full finished basement provides additional living space with a large recreation room, two versatile bonus rooms (one with a closet), a utility room with shelving, cabinets, and utility sink, plus ample storage including an under-stairs closet. Additional highlights include a large driveway with off-street parking for two additional vehicles. Conveniently located near NYC bus and train transportation, shopping, and major roadways. A wonderful opportunity to own a well-maintained home with generous space and thoughtful updates.

Features of 1040 Hillside Drive

MLS® #
2611754R
Bedrooms
4
Bathrooms
3
Full Baths
2
Half Baths
1
Acres
0.52
Type
Residential
Price
$799,900
Year Built
1974
Sub-Type
Single Family Residence

Additional Features

Subdivision
Colonial Gardens

Exterior

Lot Description
Level

Community Information

Address
1040 Hillside Drive
Subdivision
Colonial Gardens
City
North brunswick
County
Middlesex
State
NJ
Zip Code
08902

Listing Information

Agent Name
CHARANJEET KAUR
Agent Office
KELLER WILLIAMS ELITE REALTORS

Listing Map

Get Directions to Property:

At a Glance

1040 Hillside Drive

North Brunswick, NJ, 08902

$799,900

4 Beds

3 Bathrooms

0 Building Sqft

22,651 Lot Sqft

Contact Agent