Skip to content

3 Beds

2 Bathrooms

1,632 Building Sqft

2,424 Lot Sqft

$849,000

53 Grant Place, Staten Island, NY, 10306

About 53 Grant Place

Active Two Family - Attached

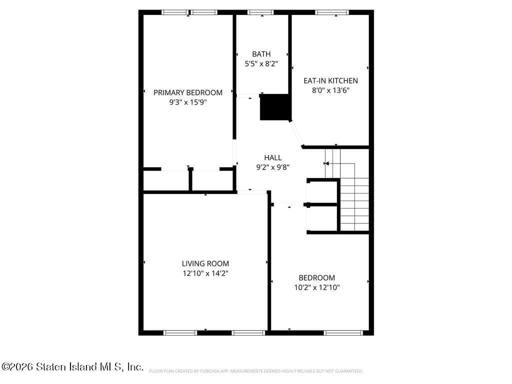
Located on a prime block in Grant City just off Hylan Boulevard, this solid brick 2-family property features 2 separate gas boilers and water heaters, a common driveway shared by only five homes, and a private double-car garage with parking for up to 4 cars. The top-floor apartment offers 2 bedrooms with potential to convert to 3, while the first-floor 1-bedroom unit can easily be reconfigured into 2 bedrooms, plus a basement accessed from the garages that includes the boiler room and additional usable space. The building measures approximately 24×34 ft on a 24×100 ft lot, with a low annual HOA fee of 380 for the rear parking area and property taxes of about 5,400 per year. Conveniently located near supermarkets, shopping, public transportation, and Hylan Blvd, this is an excellent opportunity for investors or owner-occupants seeking strong cash flow and long-term appreciation.

Features of 53 Grant Place

MLS® #
2600786
Bedrooms
3
Bathrooms
2
Full Baths
2
Acres
0.06
Type
Residential Income
Price
$849,000
Building Sqft
1,632
Year Built
1939
Sub-Type
Two Family - Attached

Community Information

Address
53 Grant Place
City
Staten Island
County
Richmond
State
New York
Zip Code
10306

Listing Information

Agent Name
Jason Zhou
Agent Office
Re/Max Edge

Listing Map

Get Directions to Property:

At a Glance

53 Grant Place

Staten Island, NY, 10306

$849,000

3 Beds

2 Bathrooms

1,632 Building Sqft

2,424 Lot Sqft

Contact Agent