Skip to content

6 Beds

8 Bathrooms

3,800 Building Sqft

5,000 Lot Sqft

$1,599,999

80 Sprague Avenue, Staten Island, NY, 10307

About 80 Sprague Avenue

Active Duplex

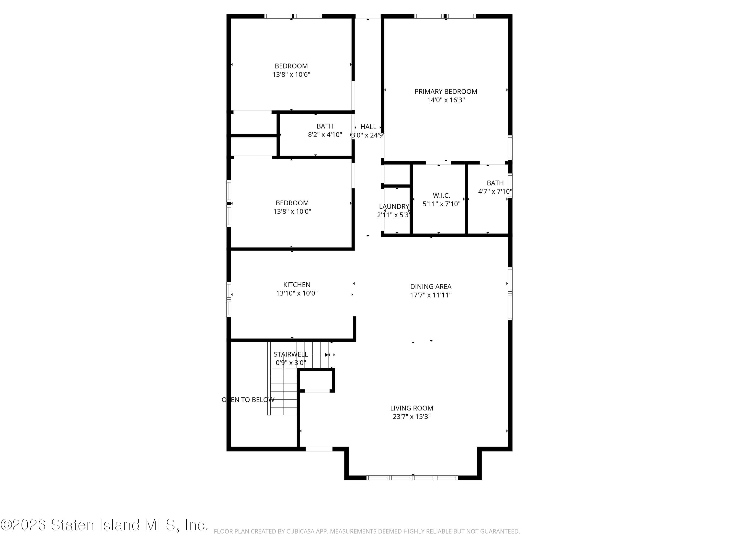
ONE LEFT! Welcome to Sprague Avenue Estates! RESERVE NOW AND CHOOSE FINISHES! Great Location! MASSIVE Multi-Family Detached New Construction 6 over 6. The features in this 6 bedroom, 6 bathroom masterpiece include High-end Kitchens with Quartz Counters, Hardwood Flooring, Anderson Windows, 9ft ceilings on 1st floor, 2nd floor Living Room Features Vaulted ceilings. Tremendous finished basement with two separate entries, 2 baths. Washer/dryer hookups every floor. Primary bedrooms each have a private 3/4 bath, walk in closet. This house also offers great outdoor space for additional parking or yard. Make this home yours Today. Only 2 Homes Being Built! Close to Schools, Restaurants, Shopping & Transportation.

Features of 80 Sprague Avenue

MLS® #
2600691
Bedrooms
6
Bathrooms
8
Full Baths
6
Acres
0.11
Type
Residential Income
Price
$1,599,999
Building Sqft
3,800
Year Built
2026
Sub-Type
Duplex

Exterior

Lot Description
Back Yard

Community Information

Address
80 Sprague Avenue
City
Staten Island
County
Richmond
State
New York
Zip Code
10307

Listing Information

Agent Name
Dianne E Lopardo
Agent Office
DiTommaso Real Estate

Listing Map

Get Directions to Property:

At a Glance

80 Sprague Avenue

Staten Island, NY, 10307

$1,599,999

6 Beds

8 Bathrooms

3,800 Building Sqft

5,000 Lot Sqft

Contact Agent