Skip to content

6 Beds

7 Bathrooms

6,840 Building Sqft

13,872 Lot Sqft

$1,860,000

70 Woodvale Loop, Staten Island, NY, 10309

About 70 Woodvale Loop

Pending Duplex

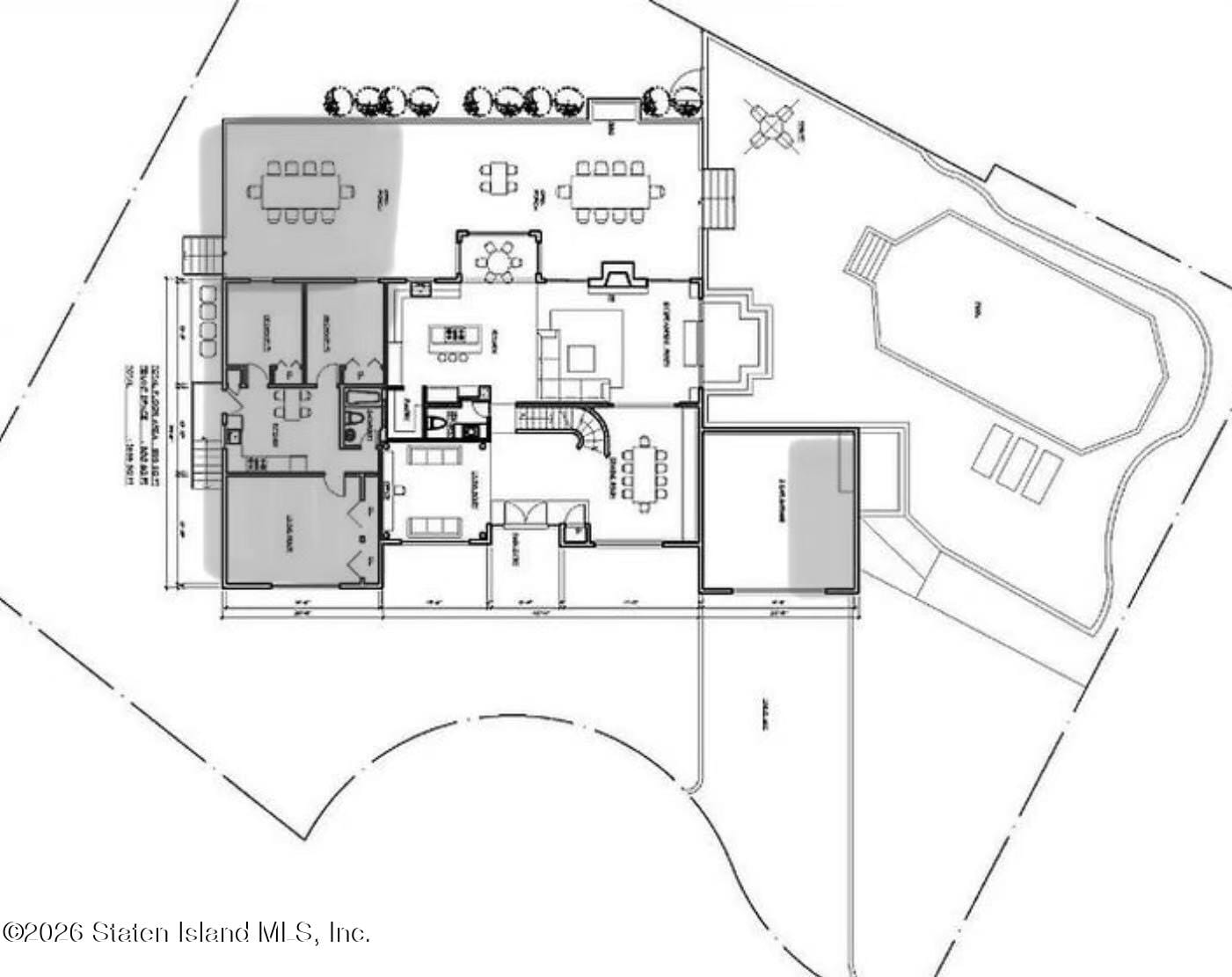
Princess Bay Luxury Two-Family Home | Private Cul-de-Sac Community

Set within an exclusive private cul-de-sac community in Princess Bay, Staten Island, this architect-designed, builder-owned residence offers exceptional craftsmanship, refined scale, and resort-style outdoor living. Situated on a 136′ x 102′ (13,872 sq. ft.) irregular lot and zoned for the most desirable schools, the home delivers approximately 6,840 sq. ft. of living space including a fully finished basement. The main residence spans approx. 5,605sq. ft., complemented by a second unit offering 2 bedrooms, 1 bath, and approx. 1,280 sq. ft.

Inside, enjoy a dramatic two-story atrium, rich architectural millwork, and radiant-heated granite flooring. The chef’s kitchen features luxury appliances including two double ovens, cooktop, Viking built-in refrigerator, and a large center island. Entertain in the formal living room and vaulted-ceiling dining room, or unwind in the expansive den with fireplace and sliders to a 60′ composite deck and separate pool area. Upstairs, the primary suite showcases a king-sized layout with clerestory windows, cathedral ceilings, skylights, walk-in closet, and spa-style bath with soaking tub, plus three additional queen-sized bedrooms, a full bath with linen storage, and a full attic.

Outdoor amenities include a 20′ x 40′ heated in-ground pool (9′ deep) set apart for privacy and safety with mature hedges, a wooded backyard, a 16′ x 60′ TREX deck, professional landscaping, exterior lighting, and brick-paved walkways. Two-car garage + private driveway, with ample guest parking within the community.

Key systems: 5-zone central A/C (2016), two boilers with multi-zone radiant heat, and dual hot-water makers for year-round comfort.

Features of 70 Woodvale Loop

MLS® #
2600548
Bedrooms
6
Bathrooms
7
Full Baths
4
Half Baths
1
Acres
0.32
Type
Residential Income
Price
$1,860,000
Building Sqft
6,840
Year Built
1985
Sub-Type
Duplex

Exterior

Lot Description
Front Yard, Back Yard

Community Information

Address
70 Woodvale Loop
City
Staten Island
County
Richmond
State
New York
Zip Code
10309

Listing Information

Agent Name
Ting Ting \"Helen\" Fung
Agent Office
Ashford Homes LLC

Listing Map

Get Directions to Property:

At a Glance

70 Woodvale Loop

Staten Island, NY, 10309

$1,860,000

6 Beds

7 Bathrooms

6,840 Building Sqft

13,872 Lot Sqft

Contact Agent