Skip to content

2 Beds

1 Bathrooms

964 Building Sqft

871 Lot Sqft

$349,900

50 Belair Road 4i, Staten Island, NY, 10305

About 50 Belair Road

Pending Apartment

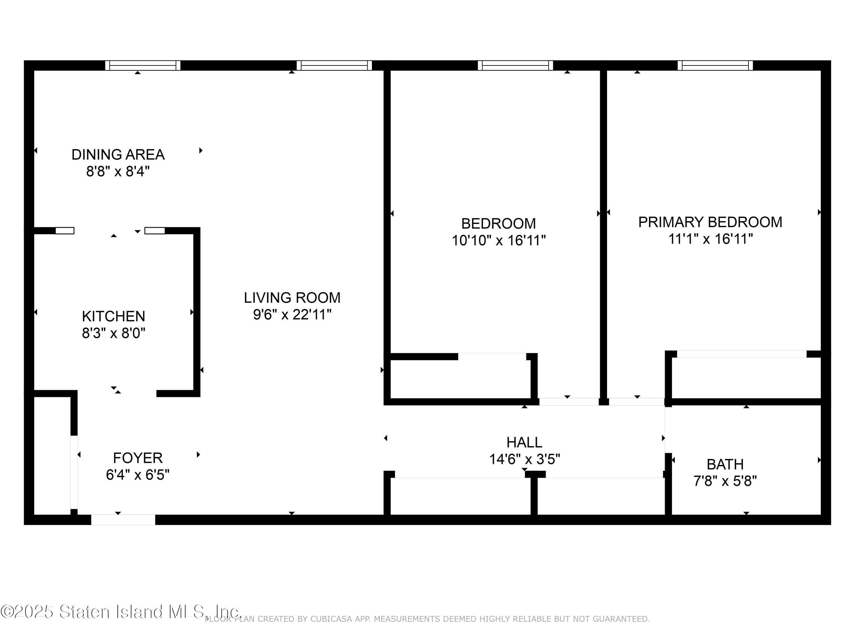
Spacious 2-bedroom, 1-bath condo featuring a large living room/dining room combo, kitchen, and abundant closet space. Enjoy the convenience of newly remodeled laundry rooms. Perfectly situated just minutes away from the Verrazano Bridge and close to all public transportation.

Features of 50 Belair Road

MLS® #
2504779
Bedrooms
2
Bathrooms
1
Full Baths
1
Acres
0.02
Type
Residential
Price
$349,900
Building Sqft
964
Year Built
1985
Sub-Type
Apartment

Exterior

Lot Description

Community Information

Address
50 Belair Road
City
Staten Island
County
Richmond
State
New York
Zip Code
10305

Listing Information

Agent Name
Daniella Harrington
Agent Office
DiTommaso Real Estate

Listing Map

Get Directions to Property:

At a Glance

50 Belair Road 4i

Staten Island, NY, 10305

$349,900

2 Beds

1 Bathrooms

964 Building Sqft

871 Lot Sqft

Contact Agent