Skip to content

2 Beds

2 Bathrooms

1,179 Building Sqft

1,307 Lot Sqft

$599,000

3 Auburn Court, Red Bank, NJ, 07701

About 3 Auburn Court

Active Adult Community

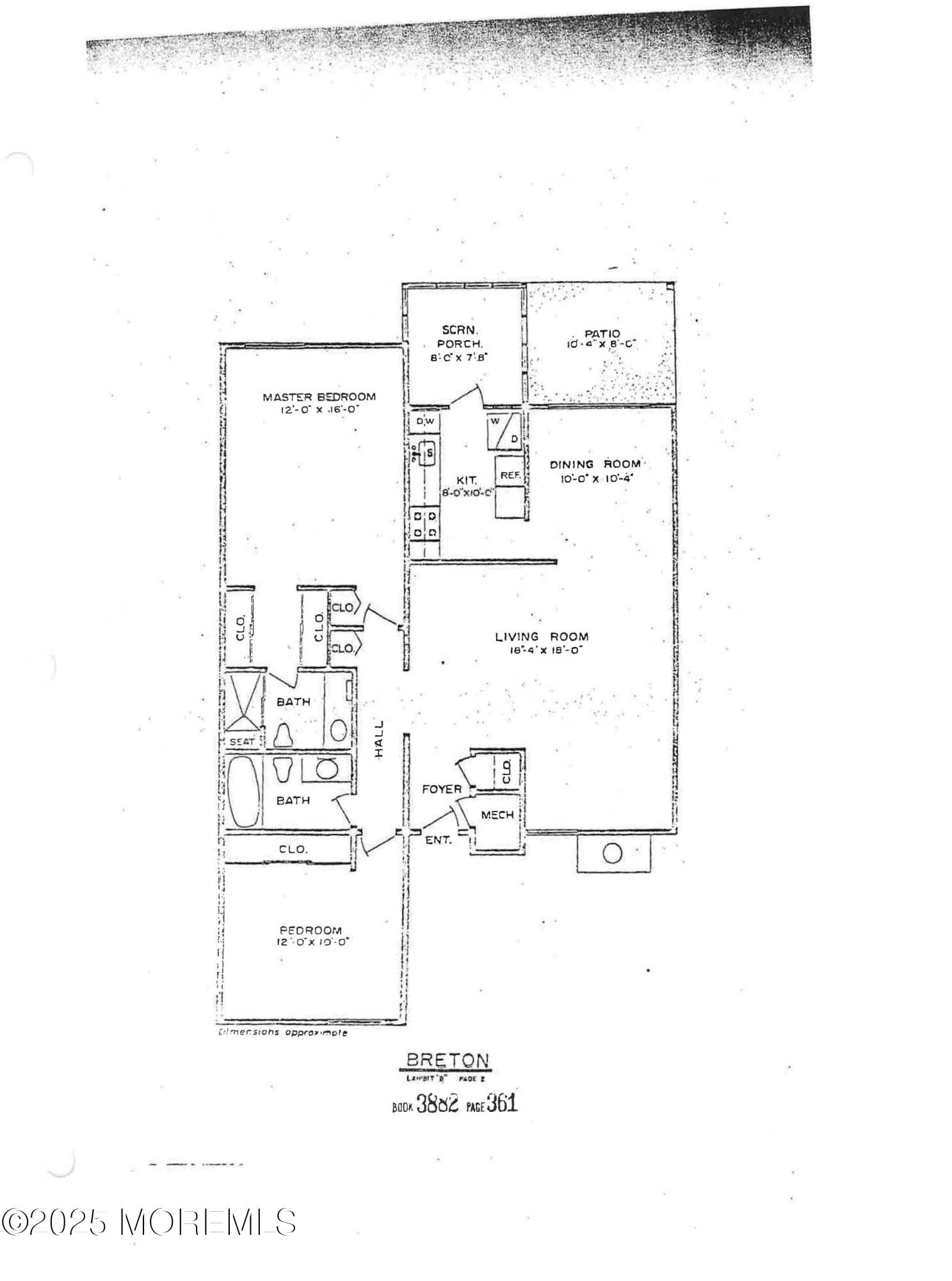
Welcome to 3 Auburn Ct, a stunningly renovated Brenton model ranch in the highly sought-after Shadow Lake Village, an active adult community. This 2-bedroom, 2-bathroom home with a garage offers the feel of new construction, boasting modern upgrades & luxurious finishes throughout. The brand-new kitchen features 36-inch white shaker cabinets with crown molding, quartz countertops, a stainless steel appliance package, a built-in microwave, & under-cabinet custom lighting. The kitchen also includes a convenient stackable washer & dryer. The home is adorned with luxury vinyl flooring & recessed LED lighting, complemented by all-new interior doors, windows, & a new HVAC system. Enjoy the outdoors with two custom-designed paver patios 1 in the front & 1 in the back perfect for relaxing or entertaining. Both bathrooms have been completely redesigned with spa-like custom tile showers, extra storage, & elegant vanities with granite countertops.

Shadow Lake Village offers an array of amenities, including a clubhouse, fitness center, swimming pool, 9-hole golf course, & beautifully landscaped grounds. Conveniently located just minutes from Red Bank’s shopping, dining, and entertainment options, & with easy access to New York City via train, this home is the perfect blend of luxury & lifestyle. Don’t miss this opportunity to live in one of the most desirable communities in the area!

Features of 3 Auburn Court

MLS® #
22536622
Bedrooms
2
Bathrooms
2
Full Baths
2
Acres
0.03
Type
Residential
Price
$599,000
Building Sqft
1,179
Year Built
1972
Sub-Type
Adult Community

Additional Features

Subdivision
Shadow Lake Vil

Exterior

Lot Description

Community Information

Address
3 Auburn Court
Subdivision
Shadow Lake Vil
City
Red bank
County
Monmouth
State
NJ
Zip Code
07701

Listing Information

Agent Name
Leonora Lacqua-Caminiti
Agent Office
Compass New Jersey LLC

Listing Map

Get Directions to Property:

At a Glance

3 Auburn Court

Red Bank, NJ, 07701

$599,000

2 Beds

2 Bathrooms

1,179 Building Sqft

1,307 Lot Sqft

Contact Agent