Skip to content

7 Beds

6 Bathrooms

4,498 Building Sqft

28,314 Lot Sqft

$1,749,900

27 Witherspoon Way, Marlboro, NJ, 07746

About 27 Witherspoon Way

Pending Single Family Residence

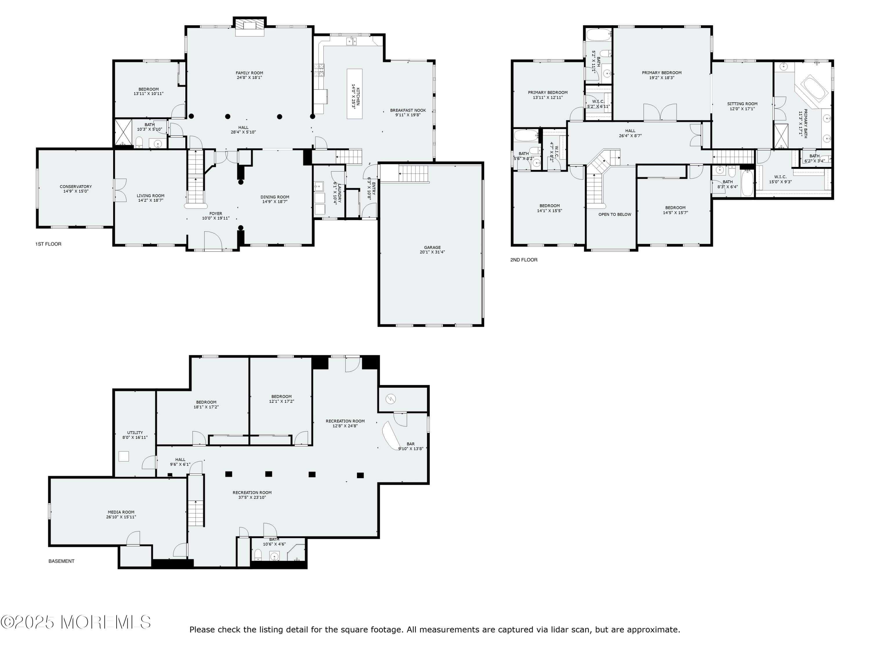
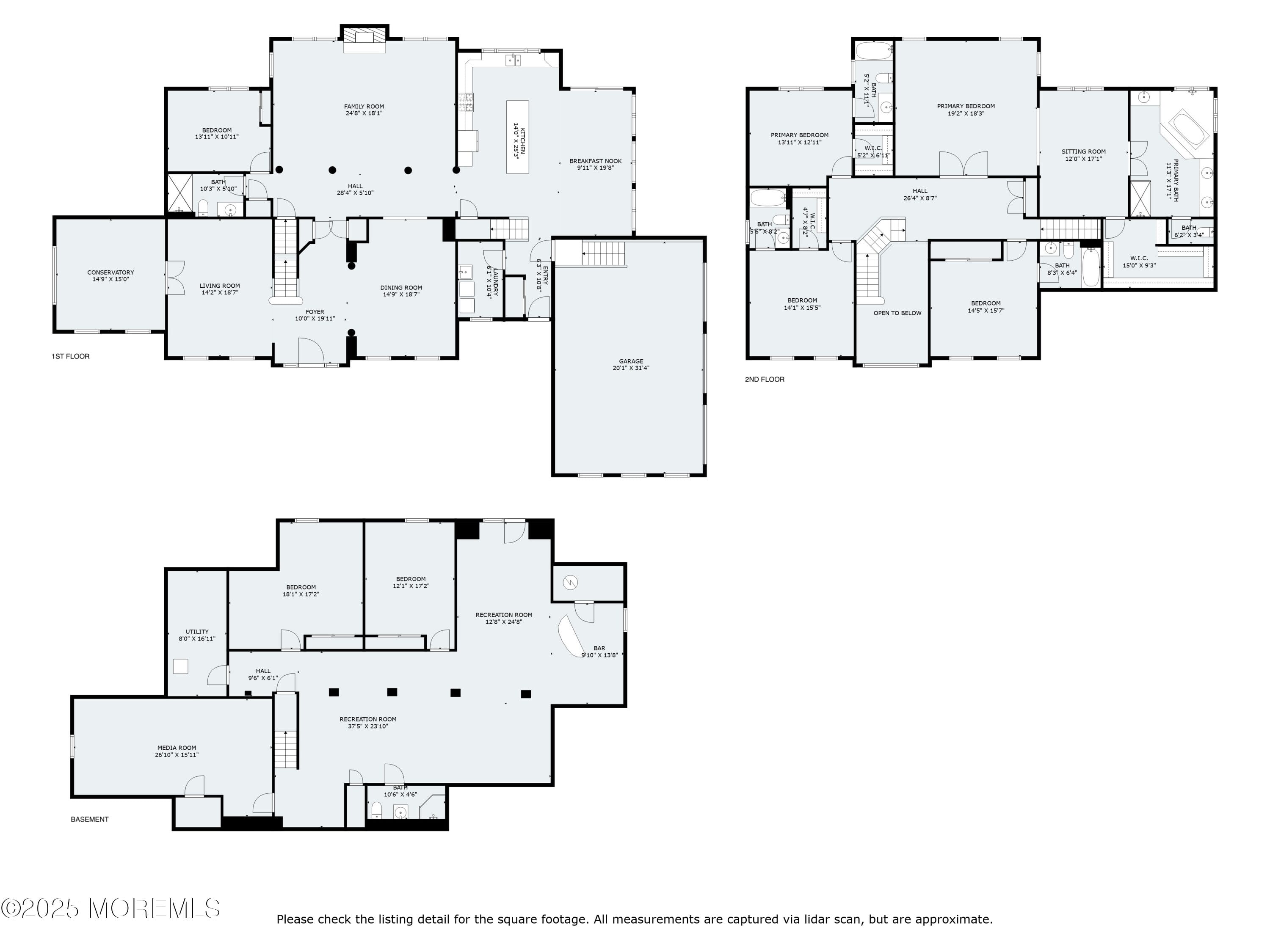
Welcome to a truly exceptional Northeast-facing Coventry model nestled in the highly sought-after Castle Pointe community in Marlboro, a prestigious Toll Brothers development known for its award-winning homes. This expansive 7-bedroom, 6-bath residence offers a thoughtfully design layout through out the house. Upstairs: Four spacious en-suite bedrooms, each with its own private bathroom. Main level: A convenient in-law suite with a full bath. Walk-out basement: Fully finished with two additional bedrooms, a full bath, a media room, fitness area, and play spaceโ€”perfect for entertaining or extended guests. Set on a premium beautifully landscaped lot, this stately brick-front home boasts dual front entrances, a 3-car side-entry garage, and an elegant trex deck and lavish patio overlooking a serene, private backyard oasis. Inside, the open-concept floor plan seamlessly connects the kitchen, breakfast nook, and family spacesperfect for everyday comfort and joyful gatherings. Enjoy panoramic backyard views through oversized picture windows that bathe the home in natural light. Host elegant dinners in the 19′ x15′ formal dining room, relax in the spacious living room, or escape to the sun-soaked conservatory. Every room is designed to elevate your lifestyle. Enjoy unbeatable convenience with proximity to: Authentic dining, shopping centers, daycare & sport facilities, dance studios, golf courses, organic farms & equestrian centers, local vineyards, places of worship, and temples. Major highways: Rt. 9, 18, 33, 34, 35, I-195, Garden State Parkway, Turnpike. Just minutes from NYC-bound train and bus stops. This rare gem blends luxury, space, and a prime location into one unforgettable home. Don’t miss your chance to make it yours!

Features of 27 Witherspoon Way

MLS® #
22517051
Bedrooms
7
Bathrooms
6
Full Baths
6
Acres
0.65
Type
Residential
Price
$1,749,900
Building Sqft
4,498
Year Built
2005
Sub-Type
Single Family Residence

Additional Features

Subdivision
Castle Point

Exterior

Lot Description
Near Golf Course, Oversized, Back to Woods, Wooded

Community Information

Address
27 Witherspoon Way
Subdivision
Castle Point
City
Marlboro
County
Monmouth
State
NJ
Zip Code
07746

Listing Information

Agent Name
Lydia Chen
Agent Office
Heritage House Sotheby\'s International Realty

Listing Map

Get Directions to Property:

At a Glance

27 Witherspoon Way

Marlboro, NJ, 07746

$1,749,900

7 Beds

6 Bathrooms

4,498 Building Sqft

28,314 Lot Sqft

Contact Agent