Skip to content

3 Beds

3 Bathrooms

1,553 Building Sqft

821 Lot Sqft

$639,000

221 Arlo Road, Staten Island, New York, 10301

About 221 Arlo Road

Active Single Family

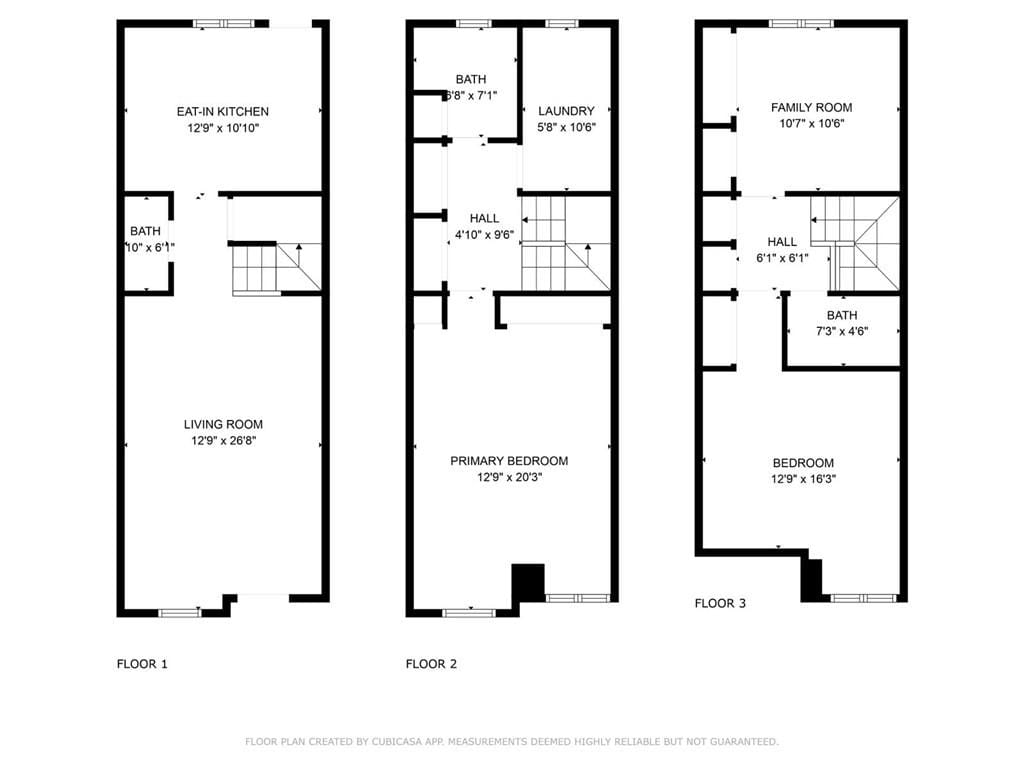
Welcome to this beautifully maintained 3-bedroom, 2.5-bath single-family home nestled in the serene neighborhood of Grymes Hill. This sun-filled residence offers the perfect blend of space, comfort, and convenience just minutes from shopping, commuter buses, and the Verrazano Bridge.

The main level features a bright and airy living and dining area, complemented by a spacious kitchen with a charming built-in banquette ideal for casual meals or morning coffee. Come out to your private back patio, perfect for relaxing or entertaining.

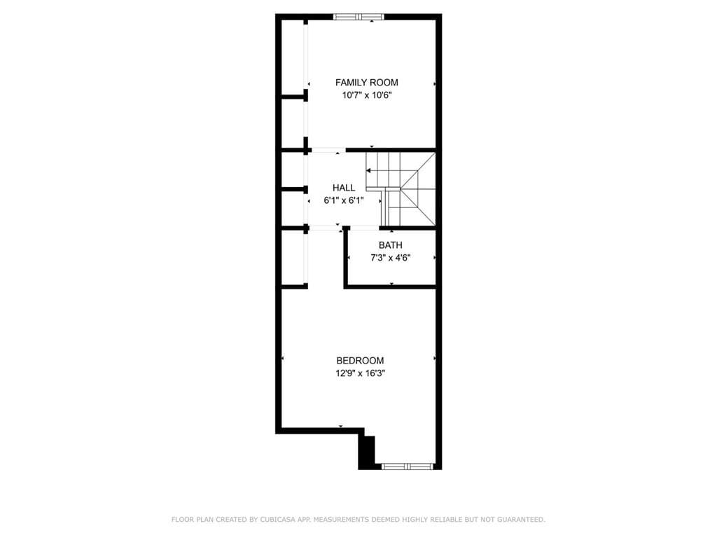
Upper level, the king-sized primary suite provides a peaceful retreat, complete with a cozy reading nook, exceptional closet space, and a full en-suite bath. The top floor offers two additional generously sized bedrooms, another full bathroom, and ample closet space for all your storage needs.

With off-street parking and a quiet, sought-after location, this inviting home is move-in ready and not to be missed.

Features of 221 Arlo Road

MLS® #
493771
Bedrooms
3
Bathrooms
3
Acres
0.02
Type
Residential
Price
$639,000
Building Sqft
1,553
Year Built
1996
Sub-Type
Single Family

Community Information

Address
221 Arlo Road
City
Staten Island
County
Staten Island
State
New York
Zip Code
10301

Listing Information

Agent Name
Salvatore C. Settepani
Agent Office
eXp Realty BKNY

Listing Map

Get Directions to Property:

At a Glance

221 Arlo Road

Staten Island, New York, 10301

$639,000

3 Beds

3 Bathrooms

1,553 Building Sqft

821 Lot Sqft

Contact Agent