Skip to content

1 Beds

1 Bathrooms

650 Building Sqft

3,049 Lot Sqft

$278,000

1967 65th Street 2C, Brooklyn, New York, 11204

About 1967 65th Street

Active Coop

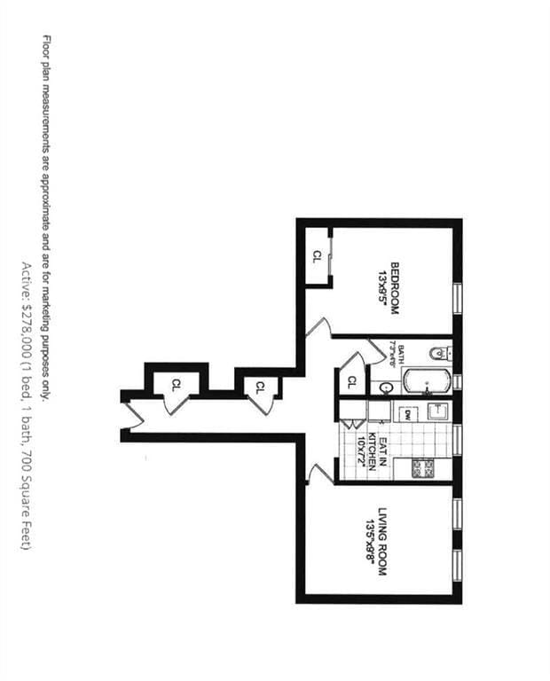
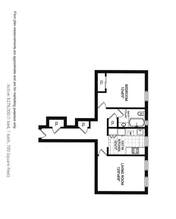
Discover a prime location for this cozy 1 bedroom co-op, offering the best price and value in the area. This charming home features elegant parquet floors, custom door and window molding, and attractive radiator covers. The ceramic tile bath includes a window, while the custom kitchen boasts stainless steel appliances and its own window. With plenty of closets for storage, this pet-friendly building allows subletting from day one with no monthly sublet fees. Base maintenance is $838 per month, the current owner pays $753 with STAR credit registration. Situated near shopping, restaurants and public transportation, providing easy access to Manhattan, this property is a great investment opportunity!

Features of 1967 65th Street

MLS® #
492308
Bedrooms
1
Bathrooms
1
Full Baths
1
Acres
0.00
Type
Residential
Price
$278,000
Building Sqft
650
Sub-Type
Coop

Community Information

Address
1967 65th Street
City
Brooklyn
County
Kings (Brooklyn)
State
New York
Zip Code
11204

Listing Information

Agent Name
Karen Ng Mok
Agent Office
Century 21 Realty First

Listing Map

Get Directions to Property:

At a Glance

1967 65th Street 2C

Brooklyn, New York, 11204

$278,000

1 Beds

1 Bathrooms

650 Building Sqft

3,049 Lot Sqft

Contact Agent