Skip to content

6 Beds

2 Bathrooms

2,900 Building Sqft

3,300 Lot Sqft

$1,329,999

907 Rathbun Avenue, Staten Island, NY, 10309

About 907 Rathbun Avenue

Active Two Family - Detached

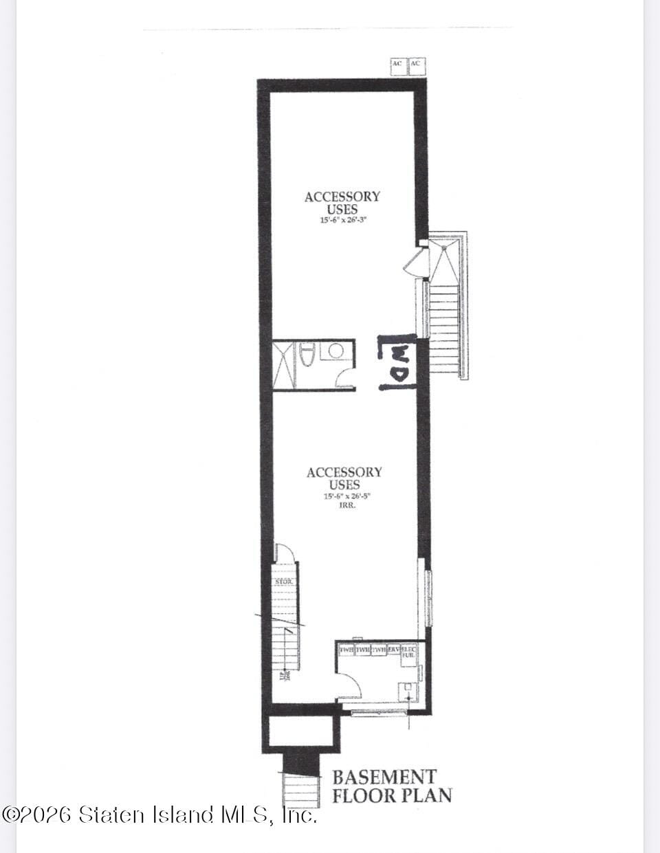
Prince’s Bay-CUSTOM NEW CONSTRUCTION. This multifamily home features 6 bedrooms, 5 baths, full finished basement with 9 foot ceilings and separate entry. House is 18x 68 and lot size is 33 x 100. This 2900 square ft home is a 6/6 style set up, and levels 1 and 2 feature 3 bedrooms, EIK, Lv/dr combo, washer dryer hookup, and 2 baths and 9 ft ceilings throughout. The finished basement has separate side entry, bath, washer dryer hookups, and 9 ft ceiling. This custom home has 3 separate electric meters, 3 zone Heat and C/A, over 80 high hats-recessed lighting throughout, custom kitchen cabinetry, quart countertops, off street parking, and much more! This home is perfect for investors or large families. Location is ideal! close to all major transportation, shopping and steps to Bloomingdale Park! Homes to be completed Spring 2026!

Features of 907 Rathbun Avenue

MLS® #
2600366
Bedrooms
6
Bathrooms
2
Full Baths
2
Acres
0.08
Type
Residential Income
Price
$1,329,999
Building Sqft
2,900
Year Built
2026
Sub-Type
Two Family - Detached

Community Information

Address
907 Rathbun Avenue
City
Staten Island
County
Richmond
State
New York
Zip Code
10309

Listing Information

Agent Name
Gaetano Marasa
Agent Office
Neuhaus Realty, Inc.

Listing Map

Get Directions to Property:

At a Glance

907 Rathbun Avenue

Staten Island, NY, 10309

$1,329,999

6 Beds

2 Bathrooms

2,900 Building Sqft

3,300 Lot Sqft

Contact Agent