Skip to content

8 Beds

5 Bathrooms

3,000 Building Sqft

4,000 Lot Sqft

$1,389,999

228 Sinclair Avenue, Staten Island, NY, 10312

About 228 Sinclair Avenue

Pending Two Family - Detached

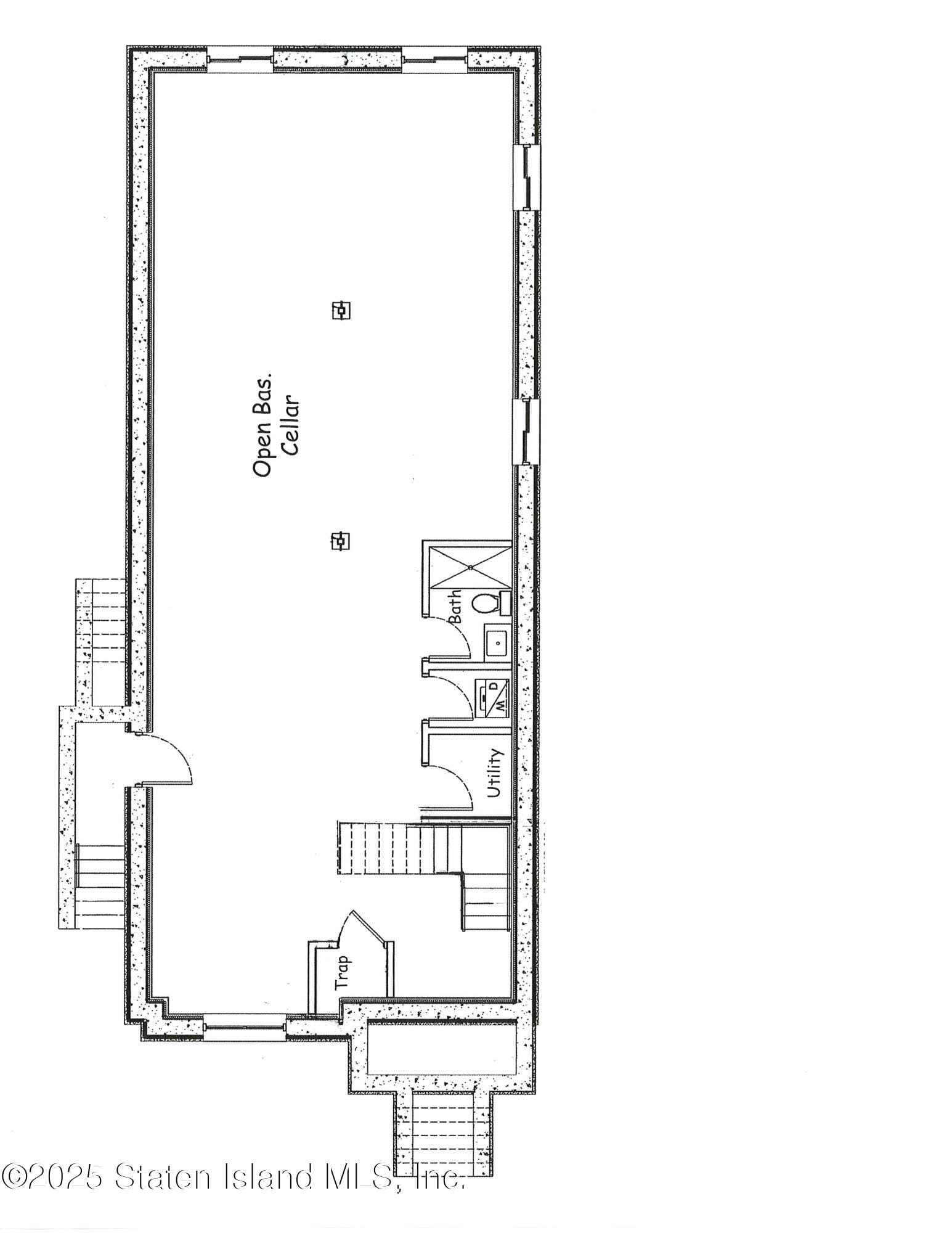
Beautiful TWO family custom 7 over 7 home located in desirable Annadale location. Features include: custom kitchen w/choice of granite or quartz top, each unit has 4 bedrooms (Master bedroom w/3/4 bath & WIC), hardwood floors thru-out, ample closet space. Full finished basement w/3/4 bath + access to yard (excludes flooring). Home is situated on gorgeous treelined block, and is conveniently located to shopping & transportation.

Features of 228 Sinclair Avenue

MLS® #
2506917
Bedrooms
8
Bathrooms
5
Full Baths
5
Acres
0.09
Type
Residential Income
Price
$1,389,999
Building Sqft
3,000
Year Built
2025
Sub-Type
Two Family - Detached

Community Information

Address
228 Sinclair Avenue
City
Staten Island
County
Richmond
State
New York
Zip Code
10312

Listing Information

Agent Office
Robert DeFalco Realty, Inc.

Listing Map

Get Directions to Property:

At a Glance

228 Sinclair Avenue

Staten Island, NY, 10312

$1,389,999

8 Beds

5 Bathrooms

3,000 Building Sqft

4,000 Lot Sqft

Contact Agent