Skip to content

4 Beds

1 Bathrooms

1,024 Building Sqft

2,500 Lot Sqft

$549,378

25 Catlin Avenue, Staten Island, NY, 10304

About 25 Catlin Avenue

Pending Single Family - Detached

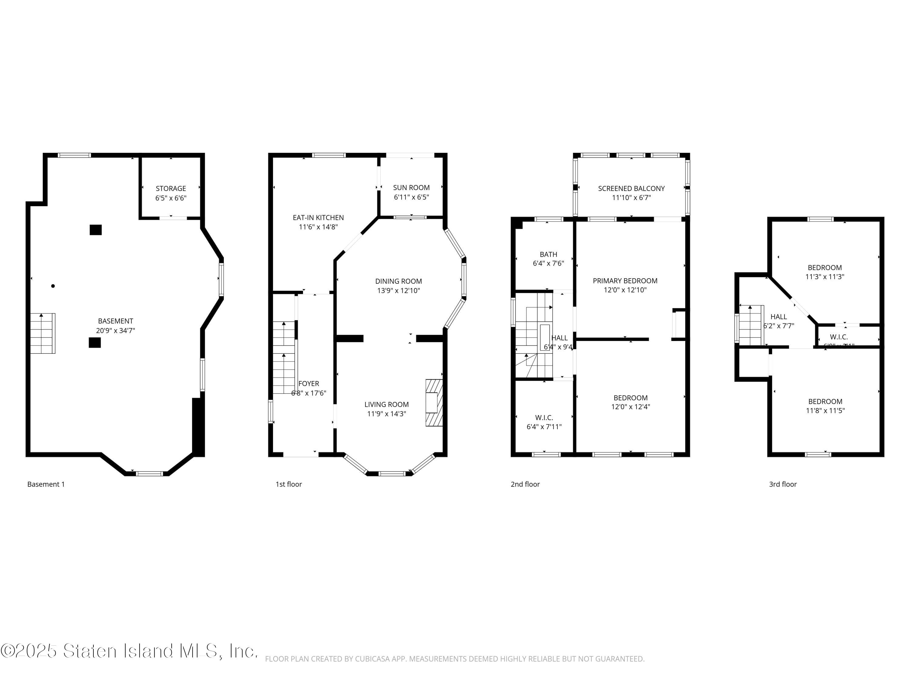
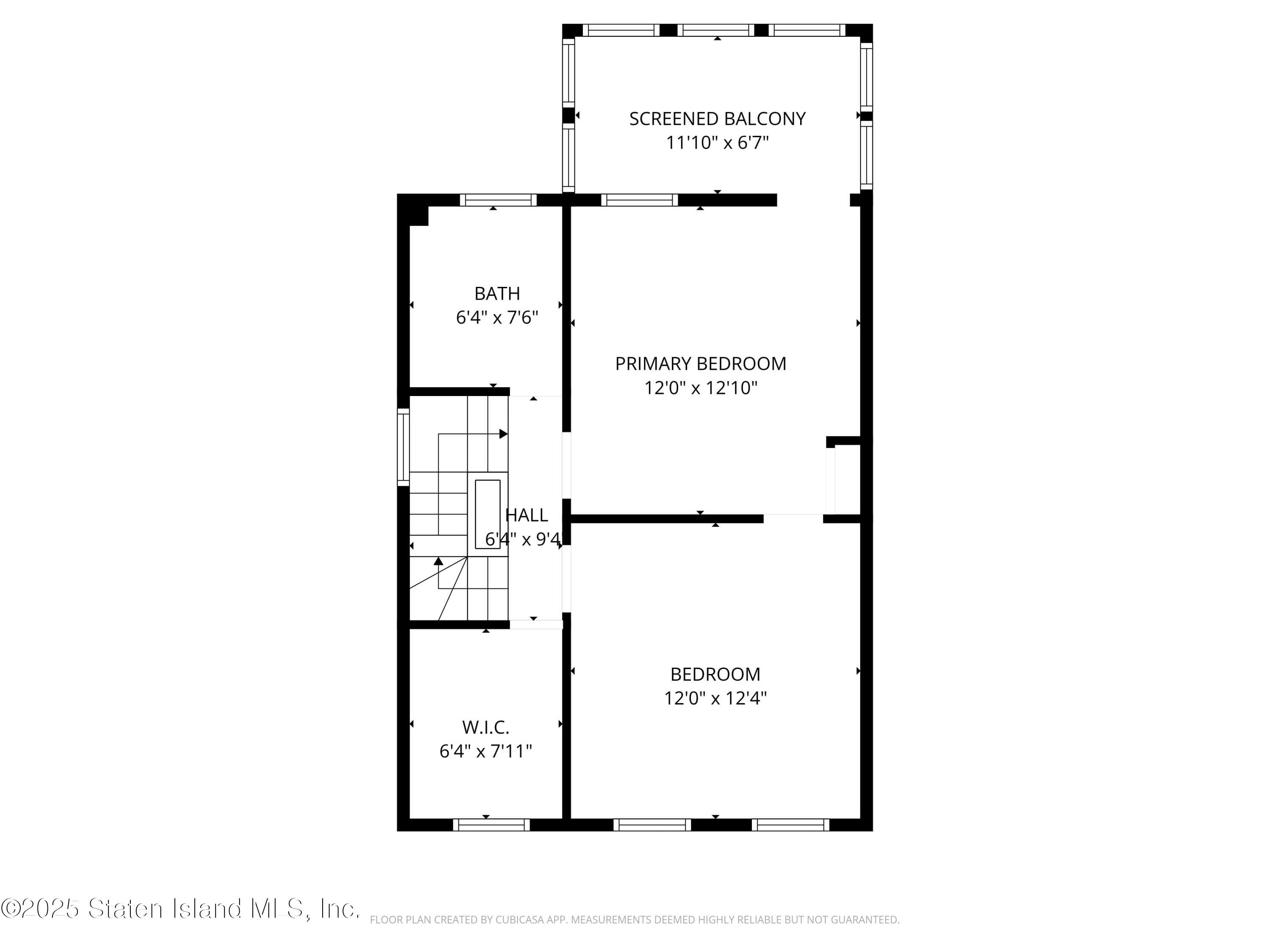
Charming and well-maintained one-family detached home on a 25×100 lot featuring 4 bedrooms, 1 full bath, and classic details throughout. The first floor offers a spacious living room, dining room, and kitchen with access to a mudroom and deck leading to a private yard with fig trees. The second floor includes two bedrooms, a full bath, a sunroom off the primary bedroom, and an office/optional bedroom. The third floor provides two additional bedrooms for flexible use.

Beautiful hardwood floors, high ceilings, and stained-glass windows add character. Major updates include a first-layer roof (2013), new windows (2024-2025), all new copper pipes, new main trap and sewer line, and no lead pipes. Radiator oil heat, window A/C units, and Scaran service contracts on the furnace and water heater provide comfort and peace of mind. Full unfinished basement for storage or future possibilities. Inviting front porch completes this warm and welcoming home!

Features of 25 Catlin Avenue

MLS® #
2506903
Bedrooms
4
Bathrooms
1
Full Baths
1
Acres
0.06
Type
Residential
Price
$549,378
Building Sqft
1,024
Year Built
1899
Sub-Type
Single Family - Detached

Exterior

Lot Description
Back, Front

Community Information

Address
25 Catlin Avenue
City
Staten Island
County
Richmond
State
New York
Zip Code
10304

Listing Information

Agent Name
Pamela Zappulla
Agent Office
DiTommaso Real Estate

Listing Map

Get Directions to Property:

At a Glance

25 Catlin Avenue

Staten Island, NY, 10304

$549,378

4 Beds

1 Bathrooms

1,024 Building Sqft

2,500 Lot Sqft

Contact Agent