Skip to content

5 Beds

3 Bathrooms

1,936 Building Sqft

4,700 Lot Sqft

$1,250,000

71 Windom Avenue, Staten Island, NY, 10305

About 71 Windom Avenue

Hold Two Family - Detached

Welcome to 71 Windom Ave โ€” a rare opportunity in a coveted location!
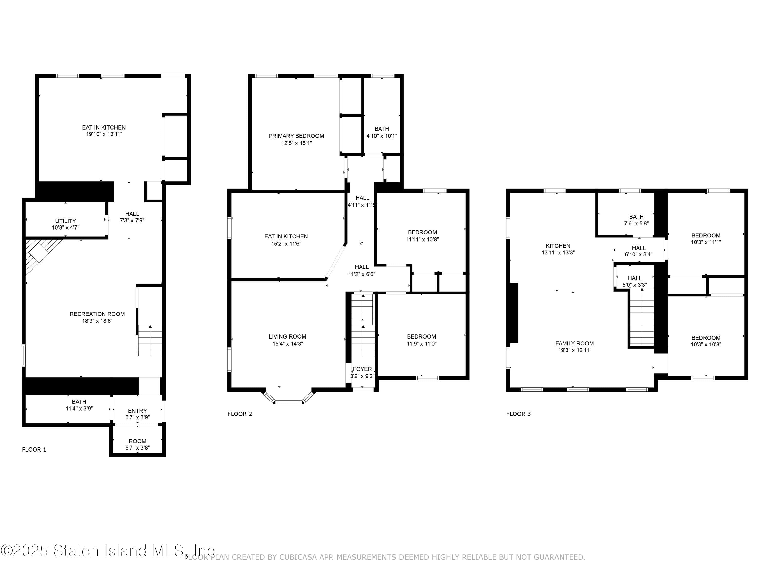
This beautiful two-family detached stucco and brick colonial sits on a peaceful 4,700 sq ft lot and offers 3,127 sq ft of versatile living space across three fully finished levels.

Main Unit: The second floor features a welcoming front balcony perfect for morning coffee, a spacious living room, an inviting eat-in kitchen, three comfortable bedrooms, and a full bathroom โ€” all with gleaming hardwood floors and tasteful finishes.

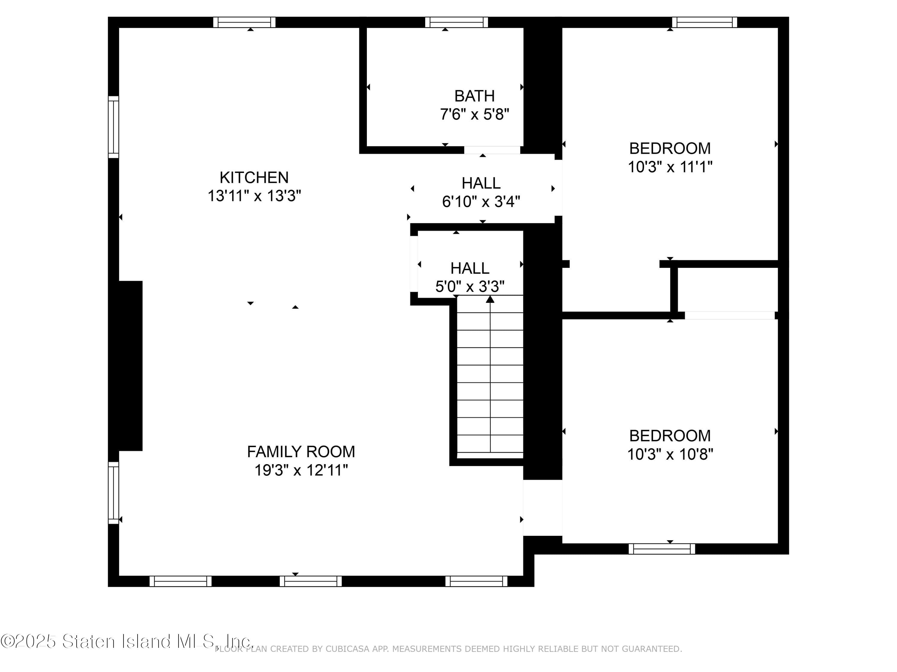
Second Unit: The top floor offers a private rental space with a bright living area, a well-equipped kitchen, two bedrooms, and a full bath with tub โ€” an ideal setup for extended family or income potential.

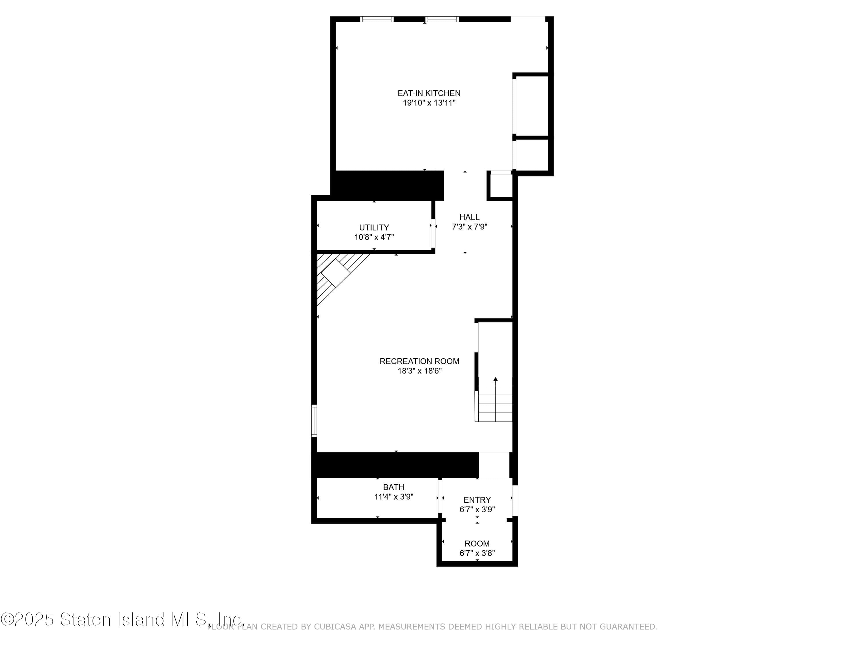
Ground Level: Accessible directly from the driveway and garage, the finished walk-out basement boasts a large living room with a cozy fireplace, a kitchen with direct backyard access, laundry area, and a ยพ bath.

Outdoor Space & Parking: The property includes a built-in garage, a private driveway, and a beautifully designed, maintenance-free paver backyard with intricate brickwork and an iron-gated fence โ€” perfect for entertaining.

Location: Minutes to the Verrazzano Bridge, major transportation, and shopping.

Additional Note: This property is being sold as-is with no certificate of occupancy in place, and the seller will not obtain one. The right buyer will appreciate the flexibility this offers and the opportunity to negotiate favorable terms

Features of 71 Windom Avenue

MLS® #
2504820
Bedrooms
5
Bathrooms
3
Full Baths
3
Acres
0.11
Type
Residential Income
Price
$1,250,000
Building Sqft
1,936
Year Built
1920
Sub-Type
Two Family - Detached

Community Information

Address
71 Windom Avenue
City
Staten Island
County
Richmond
State
New York
Zip Code
10305

Listing Information

Agent Office
Robert DeFalco Realty, Inc.

Listing Map

Get Directions to Property:

At a Glance

71 Windom Avenue

Staten Island, NY, 10305

$1,250,000

5 Beds

3 Bathrooms

1,936 Building Sqft

4,700 Lot Sqft

Contact Agent