Skip to content

4 Beds

2 Bathrooms

1,803 Building Sqft

25,265 Lot Sqft

$899,900

81 Dutch Lane Road, Colts Neck, NJ, 07722

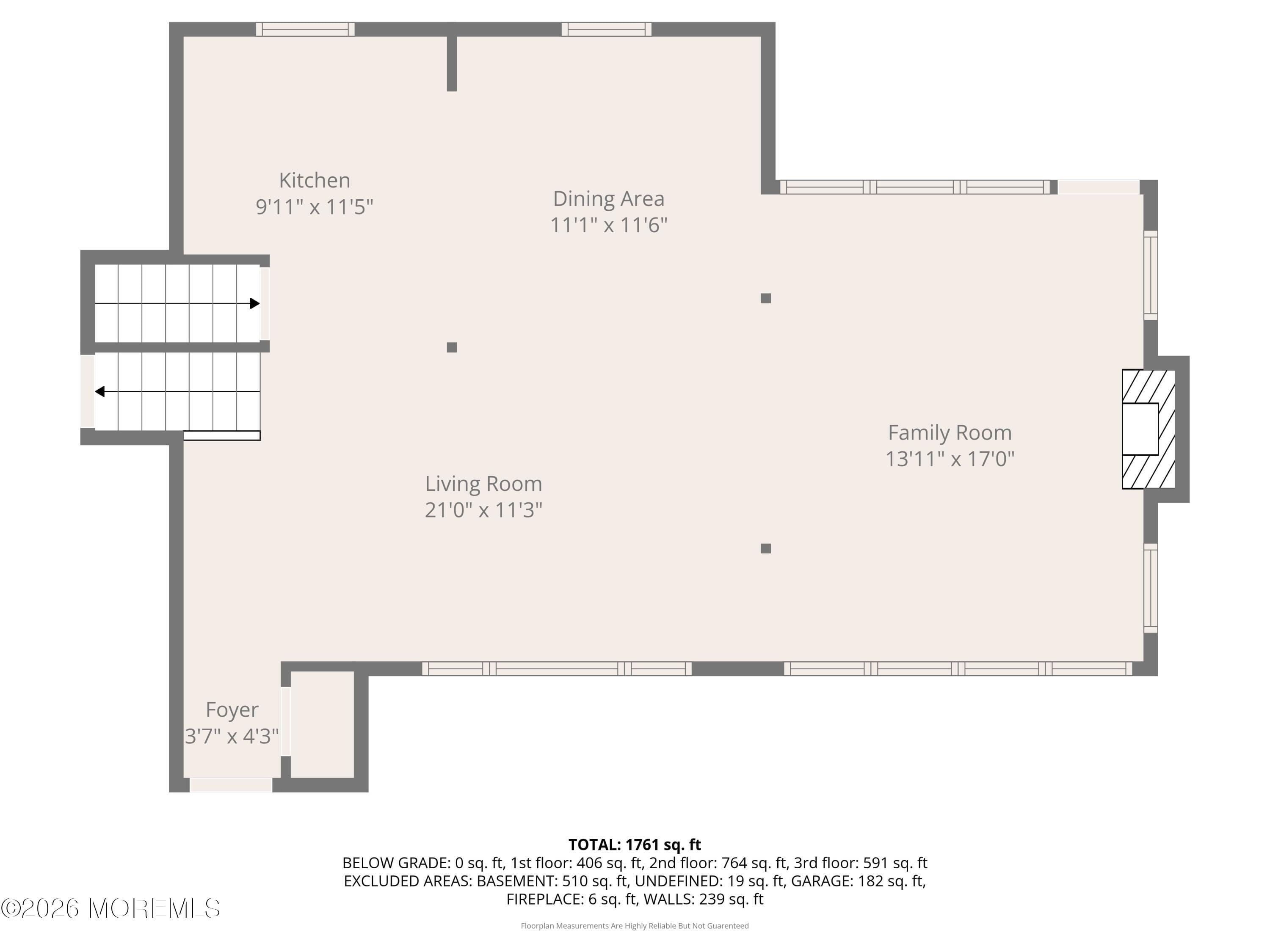
About 81 Dutch Lane Road

Active Single Family Residence

This Coming Soon listing can be shown January 9 – Updated & open floor plan 4-bedroom 2 bath with many upgrades situated on park like property with 2 story barn with added steps. New family room with vaulted ceilings, gas fireplace with stone surround floor to ceiling, decorated beams, & new windows. Gleaming hardwood floors thru out most of home. whole house painted neutral tones, new railings, new light fixtures, thru out as well as landscaping. Generator added, newer water softener. Many improvements made. Just unpack & enjoy all Colts Neck has to offer !

Features of 81 Dutch Lane Road

MLS® #
22600288
Bedrooms
4
Bathrooms
2
Full Baths
2
Acres
0.58
Type
Residential
Price
$899,900
Building Sqft
1,803
Year Built
1957
Sub-Type
Single Family Residence

Additional Features

Subdivision
None

Exterior

Lot Description

Community Information

Address
81 Dutch Lane Road
Subdivision
None
City
Colts neck
County
Monmouth
State
NJ
Zip Code
07722

Listing Information

Agent Name
Lori Merendino
Agent Office
Compass New Jersey , LLC

Listing Map

Get Directions to Property:

At a Glance

81 Dutch Lane Road

Colts Neck, NJ, 07722

$899,900

4 Beds

2 Bathrooms

1,803 Building Sqft

25,265 Lot Sqft

Contact Agent