Skip to content

3 Beds

2 Bathrooms

2,000 Building Sqft

3,000 Lot Sqft

$1,399,888

1940 83rd Street, Brooklyn, New York, 11214

About 1940 83rd Street

Pending Single Family

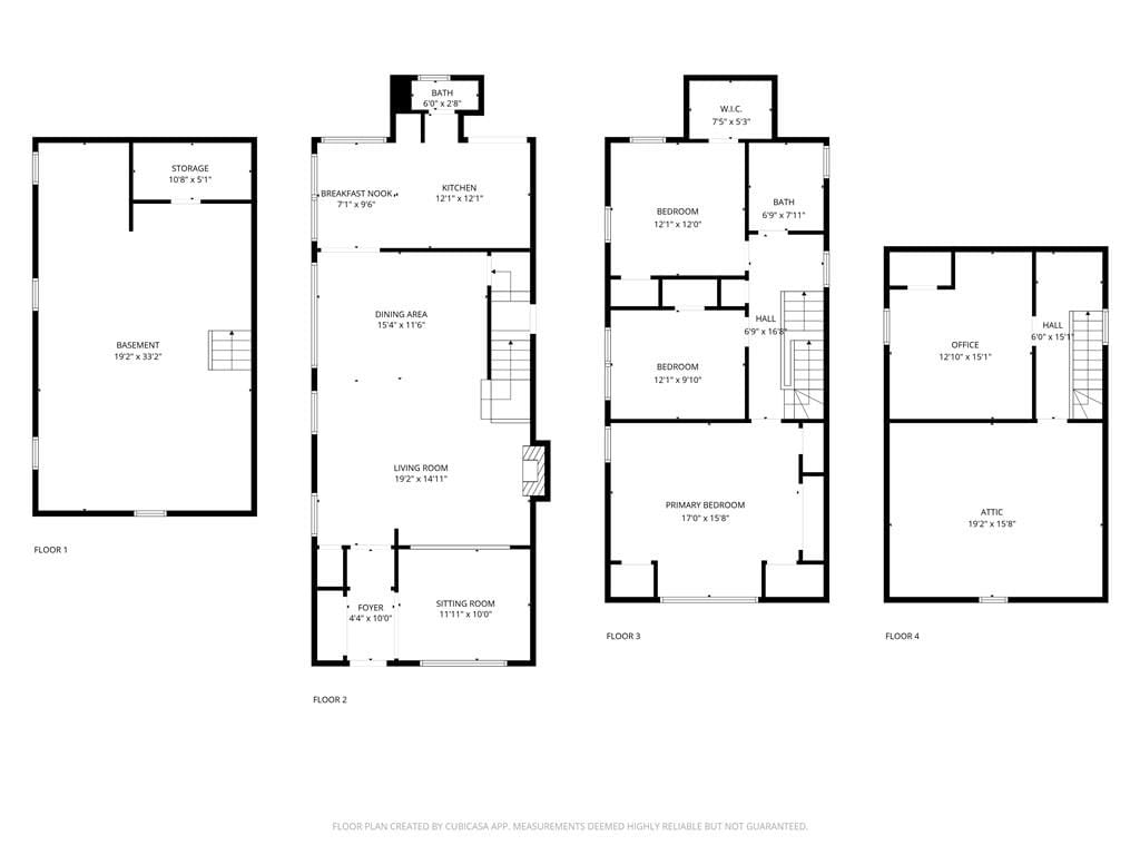
Discover Your Dream Home in Prime Bensonhurst! Location, location, location! This exceptional, detached one-family home offers an incredible opportunity for quick-cash buyers seeking a spacious residence in a highly sought-after Bensonhurst neighborhood. Enter inside this roomy three-story gem, boasting a full basement, detached garage, and a private driveway. You’ll be amazed by the flawless layouts, soaring high ceilings, abundant storage space, and a cascade of natural light that fills every corner.
The first floor welcomes you with a versatile foyer/den, leading to an inviting living and dining area complete with a cozy fireplace. The eat-in kitchen provides direct access to a private, fenced backyard—perfect for those cherished BBQs and memorable life events. A convenient half bathroom completes this level.
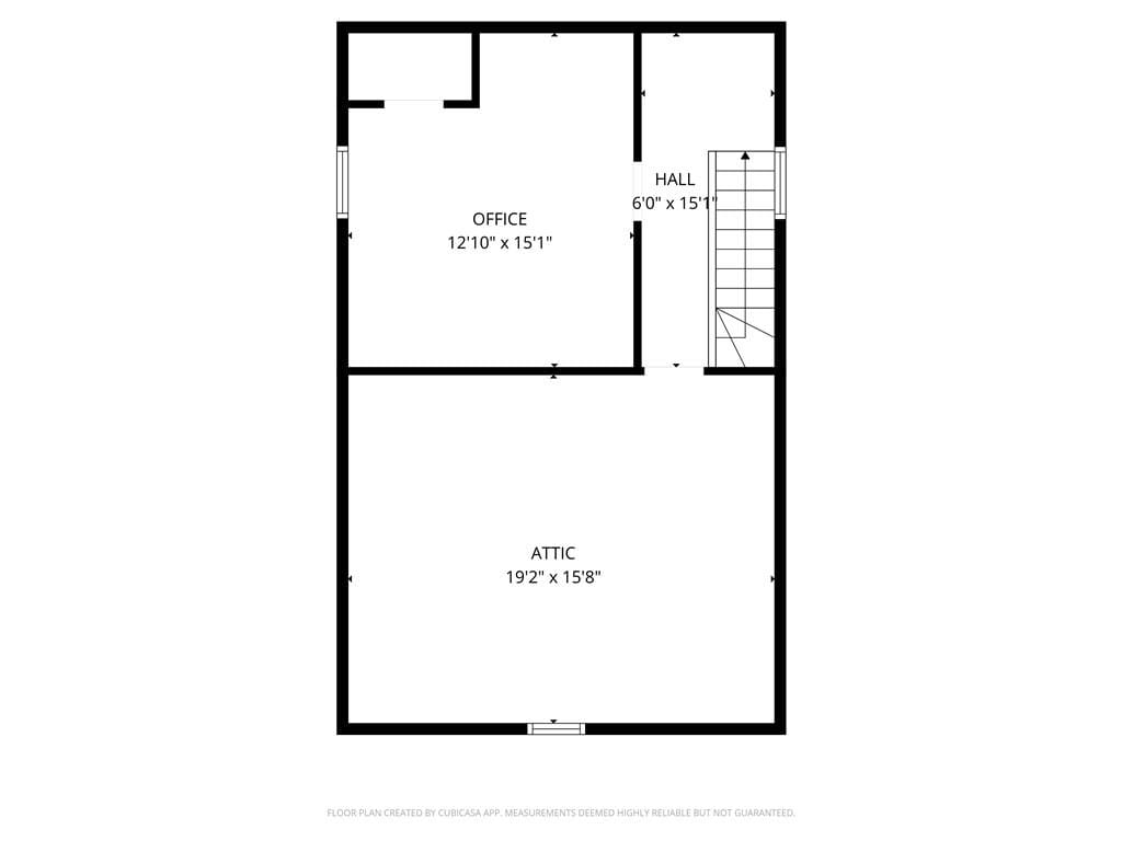
On the second level, you’ll find three generously sized bedrooms and a full bathroom, offering comfortable living for the entire family. The third level features an additional room with a closet and ample storage space, ideal for a home office, or creative sanctuary.

The full, unfinished basement with a separate entrance presents endless possibilities for customization and expansion. Parking is a breeze with a detached garage and carport. Key Details: Livable sqft 2,000 (Max 3,750 sqft). Build: 20×38, Lot: 30×100, Annual Real Estate Tax: $8,885. Near 20th Ave/86th D trains, B1 buses and plenty of shopping on 86th street.
Don’t miss this rare opportunity to own a truly remarkable home in a prime Bensonhurst location!

Features of 1940 83rd Street

MLS® #
496756
Bedrooms
3
Bathrooms
2
Half Baths
1
Acres
0.07
Type
Residential
Price
$1,399,888
Building Sqft
2,000
Year Built
1930
Sub-Type
Single Family

Community Information

Address
1940 83rd Street
City
Brooklyn
County
Kings (Brooklyn)
State
New York
Zip Code
11214

Listing Information

Agent Name
Gennadi B. Barmin
Agent Office
RE/MAX Edge

Listing Map

Get Directions to Property:

At a Glance

1940 83rd Street

Brooklyn, New York, 11214

$1,399,888

3 Beds

2 Bathrooms

2,000 Building Sqft

3,000 Lot Sqft

Contact Agent