Skip to content

1 Beds

1 Bathrooms

800 Building Sqft

246,849 Lot Sqft

$268,499

400 Maryland Avenue 3b, Staten Island, NY, 10305

About 400 Maryland Avenue

Active Apartment

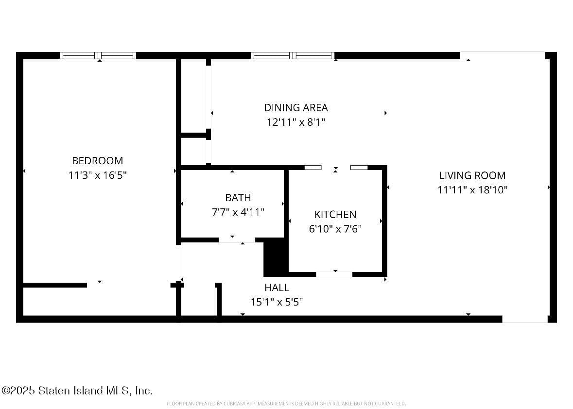
Enjoy top-floor privacy with no one above you in this spacious 3rd-floor walk-up 1-bedroom, 1-bath home. The unit features, a generous living room, separate dining area, ample closet space, and a patio overlooking the poolโ€”an ideal spot to unwind. While the home needs some TLC, it offers great potential to make it truly your own.
The private, well-kept complex offers a wide range of amenities, including an inground pool, playground, two laundry rooms, a community room, BBQ/rec area, and storage units available for rent. One parking space is included for added convenience.
The monthly HOA fee covers property taxes, gas, hot water, sewer, grounds maintenance, pool access, snow removal, laundry facilities, and parkingโ€”providing excellent value and a low-maintenance lifestyle. Subletting is allowed after two years of owner occupancy, and the community is pet-friendly, permitting one small or medium dog with board approval.
Located just minutes from the Verrazzano Bridge and within walking distance to express buses to Manhattan and buses to Brooklyn, this home offers an easy commute and a comfortable, convenient place to live.

More information and additional fees are located here:
Chateau Villa Corp. :: domecile

Features of 400 Maryland Avenue

MLS® #
2506857
Bedrooms
1
Bathrooms
1
Full Baths
1
Acres
5.67
Type
Residential
Price
$268,499
Building Sqft
800
Year Built
1974
Sub-Type
Apartment

Exterior

Lot Description

Community Information

Address
400 Maryland Avenue
City
Staten Island
County
Richmond
State
New York
Zip Code
10305

Listing Information

Agent Name
Alfred Lombardo
Agent Office
Coldwell Banker Advantage

Listing Map

Get Directions to Property:

At a Glance

400 Maryland Avenue 3b

Staten Island, NY, 10305

$268,499

1 Beds

1 Bathrooms

800 Building Sqft

246,849 Lot Sqft

Contact Agent