Skip to content

4 Beds

3 Bathrooms

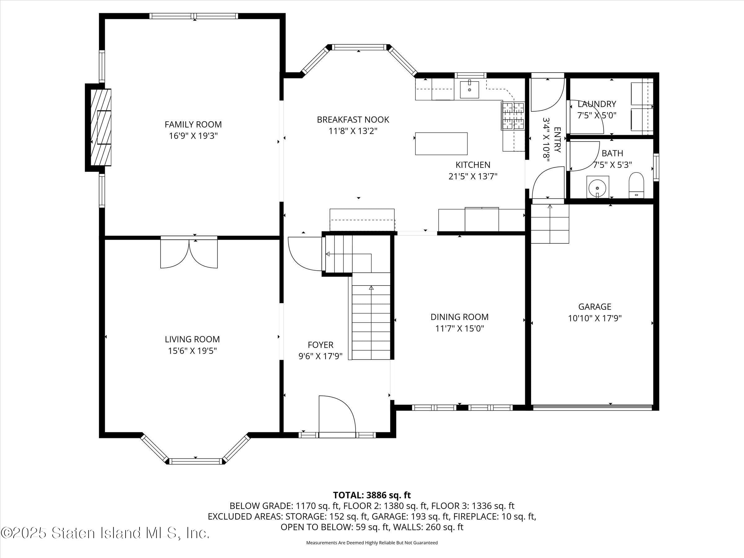
3,500 Building Sqft

6,305 Lot Sqft

$1,299,000

139 Finlay Street, Staten Island, NY, 10307

About 139 Finlay Street

Active Single Family - Detached

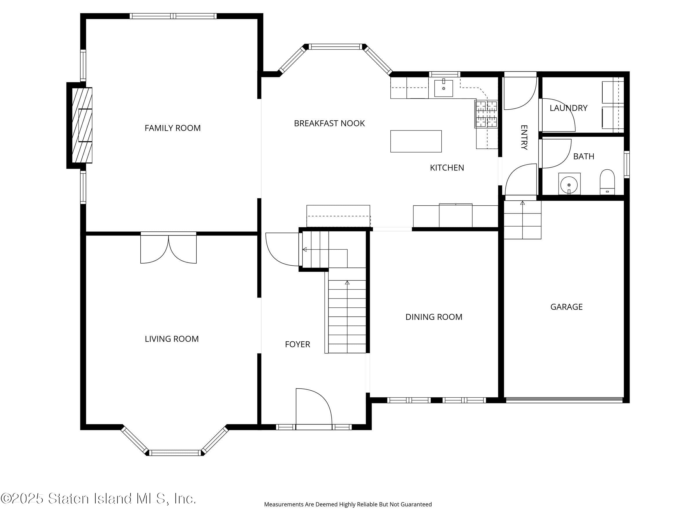
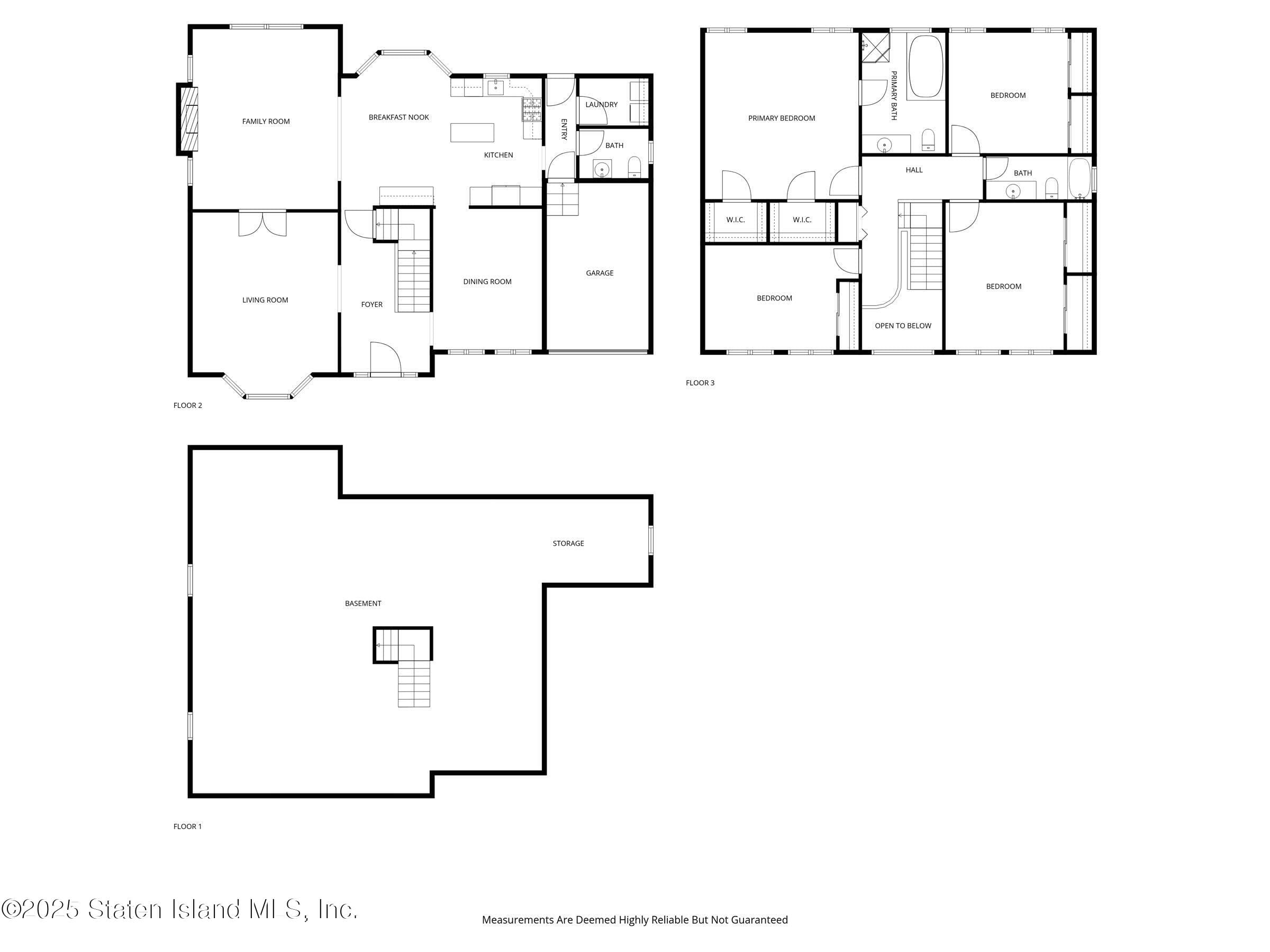
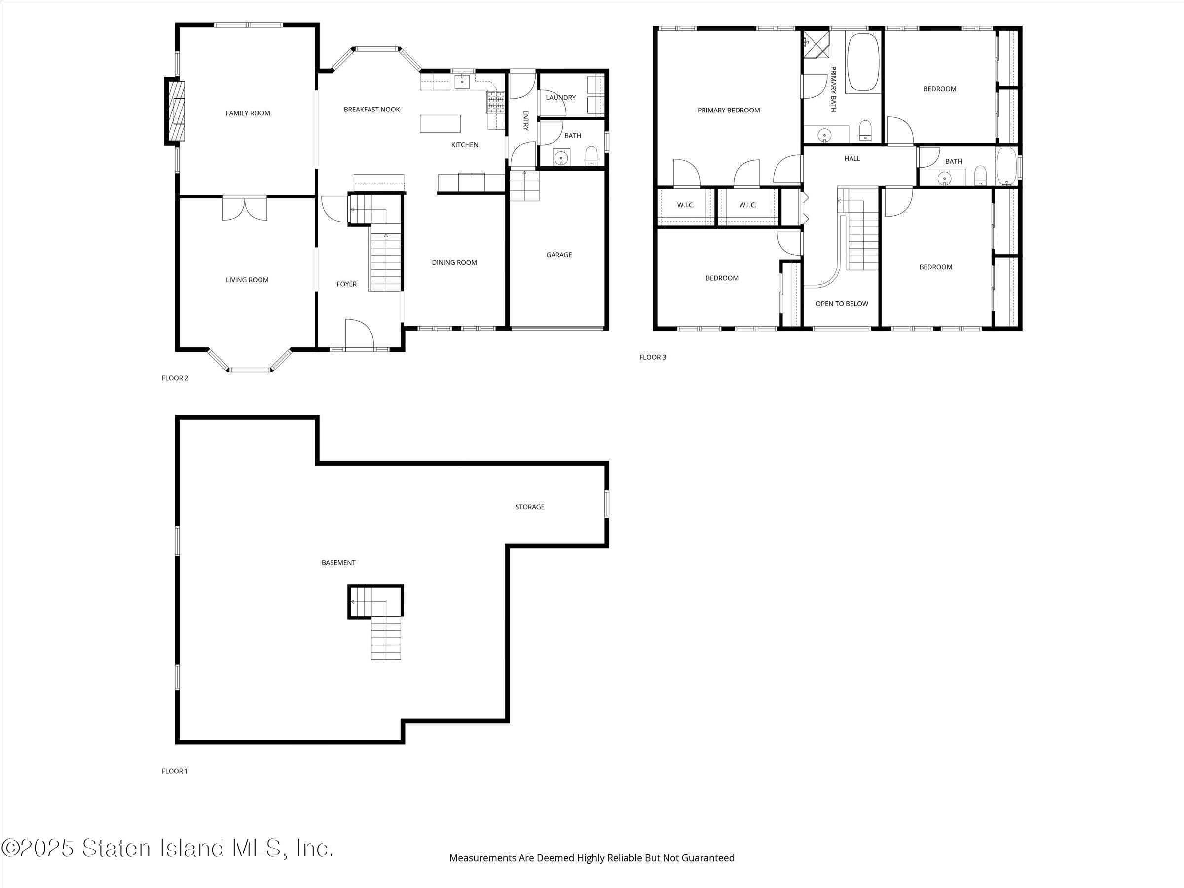
Welcome to this stunning brick-faced Center Hall Colonial located in the highly desirable Tottenville section of Staten Island. Perfectly situated on a quiet dead-end street, this expansive residence offers over 3,500 square feet of elegant living space, blending timeless architecture with modern luxury.
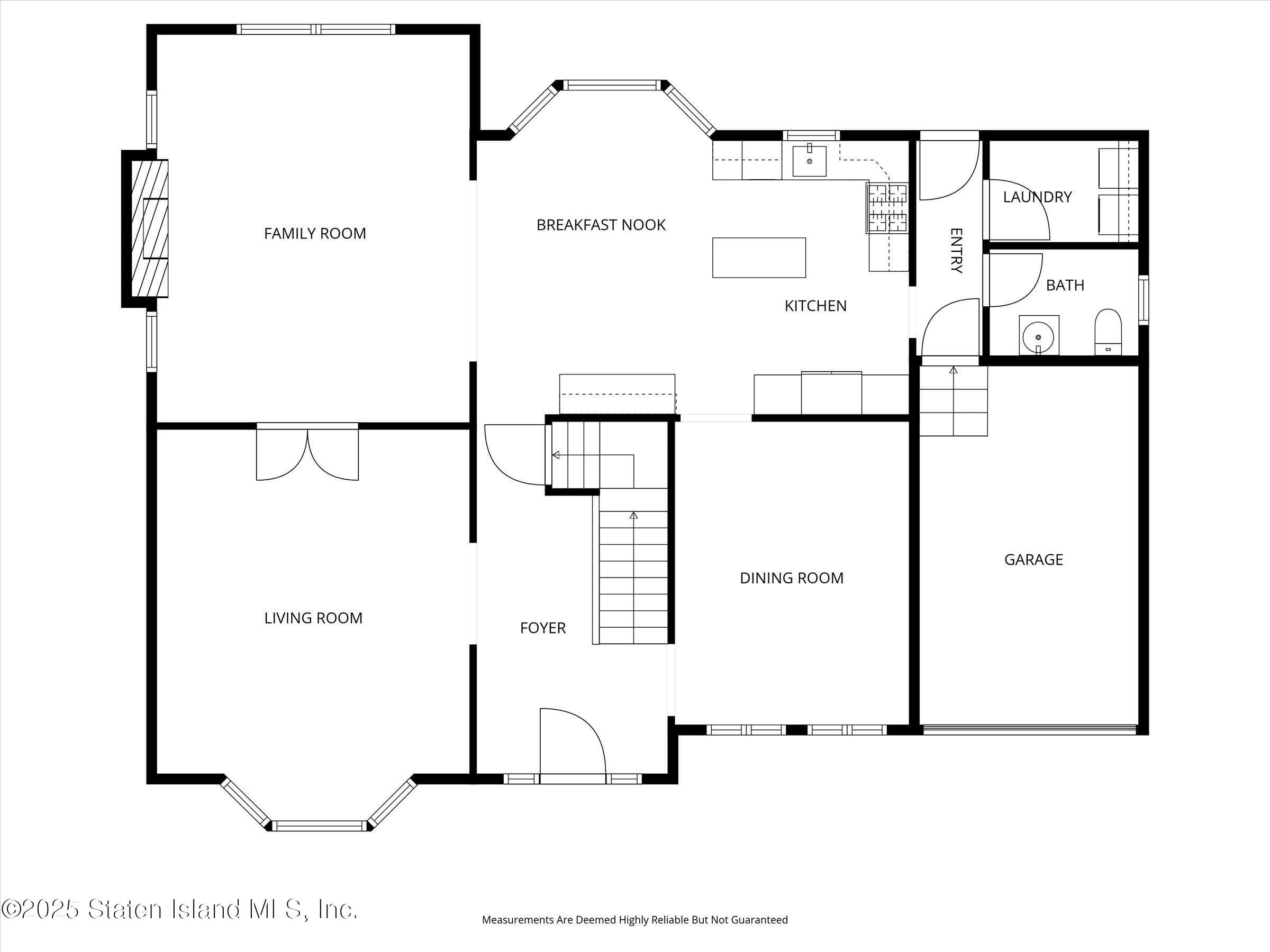
Upon entering, you’re greeted by an impressive foyer that immediately sets the tone for the home’s grandeur. The main level showcases an inviting and spacious formal living room and dining roomโ€”ideal for entertaining or hosting gatherings. The fully updated chef’s kitchen is a true highlight, featuring high-end cabinetry, sleek stainless steel appliances, and exquisite granite countertops. The kitchen flows seamlessly into an oversized family room adorned with a beautiful fireplace, creating the perfect setting for comfort and connection. A stylish half bath completes the main level.

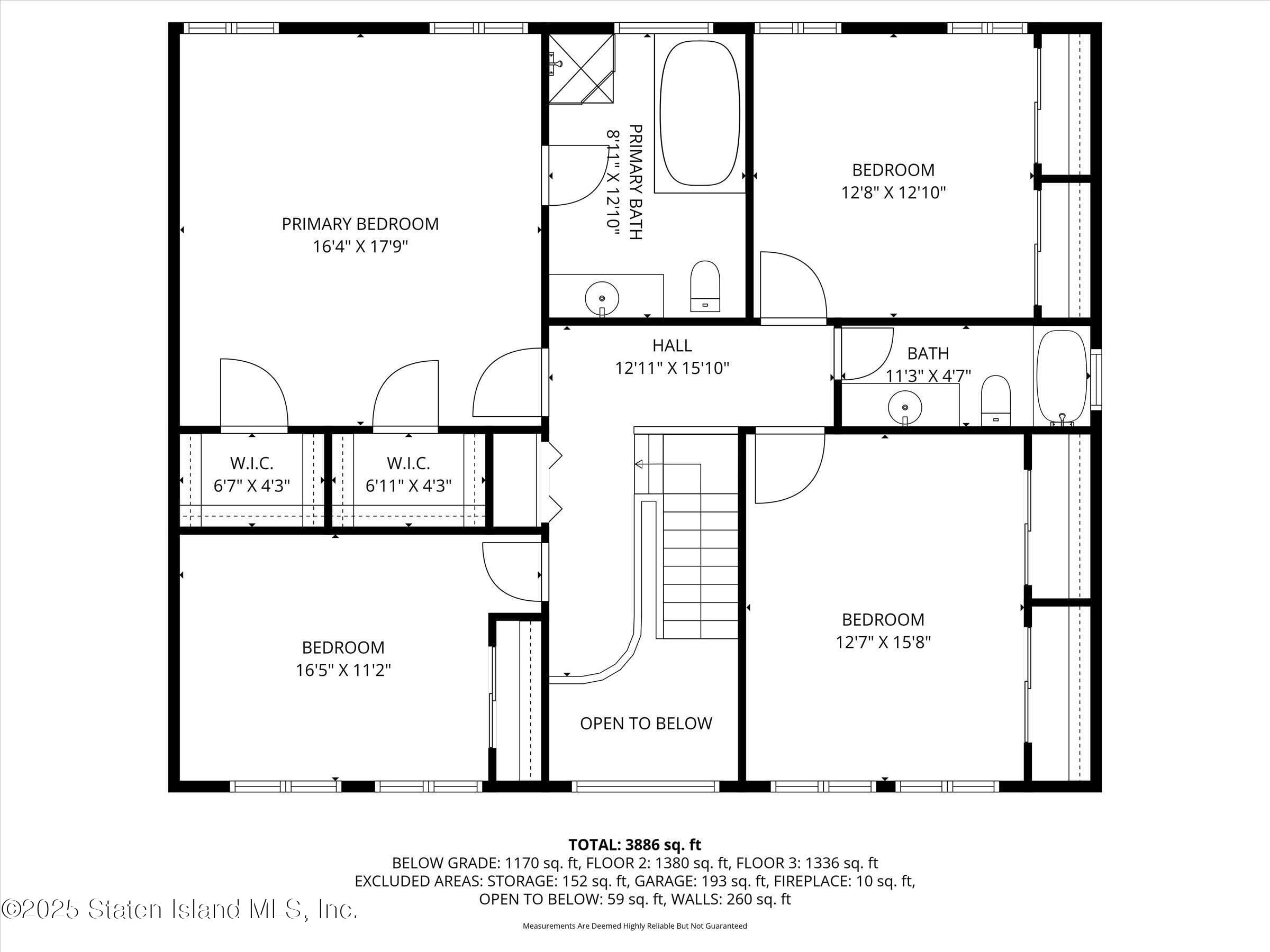
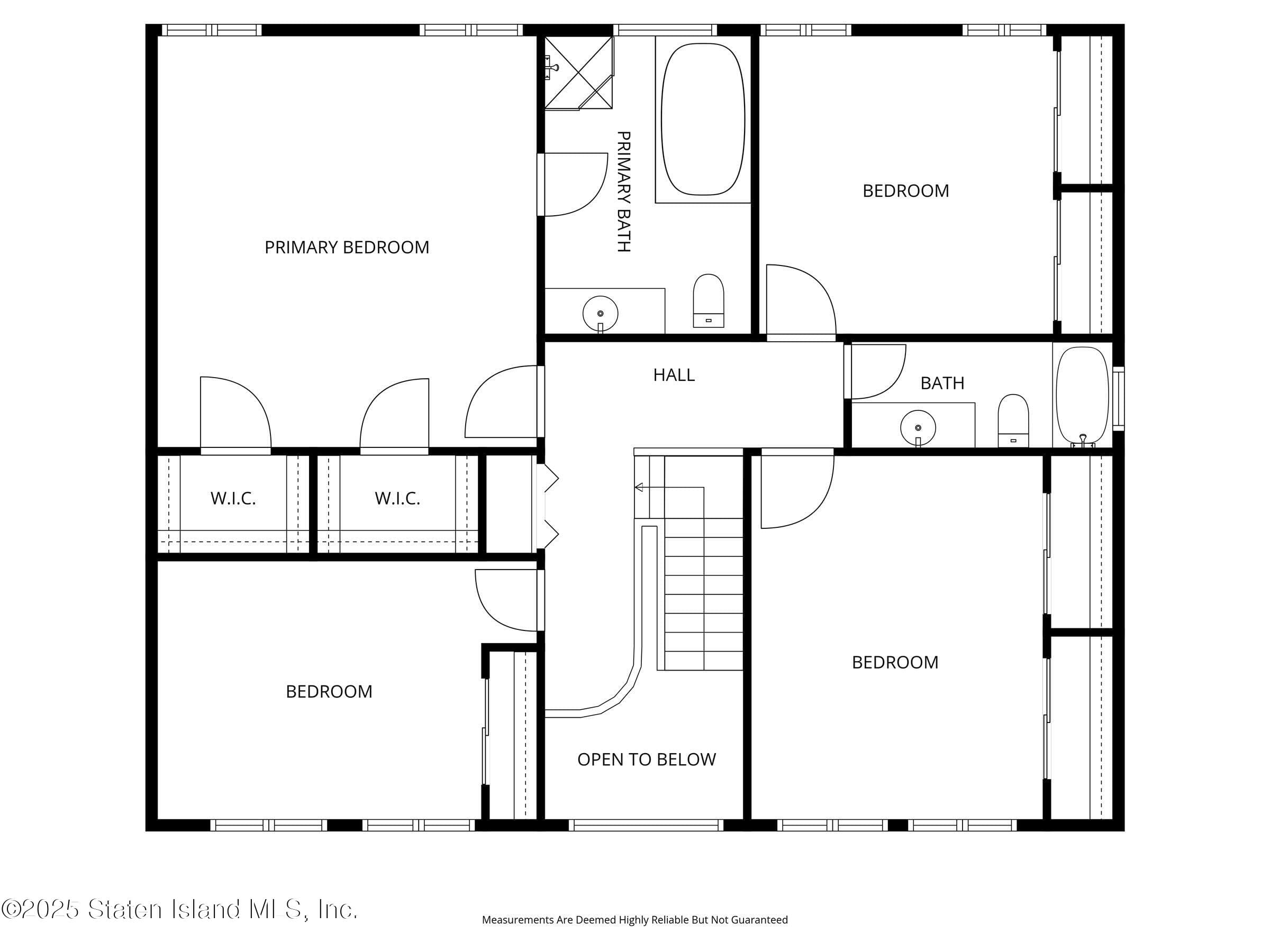
Upstairs, you’ll find four generously sized bedrooms offering both space and serenity. The primary suite is a true retreat, featuring a private en suite bathroom and ample closet space. The second floor is enhanced by three skylightsโ€”two of which are thoughtfully placed in the bathroomsโ€”filling the home with natural light.

Additional features include a central vacuum system, an alarm system providing peace of mind, and an unfinished basement that serves as an open canvas to create even more living space to suit your lifestyle.

Step outside to your own private oasisโ€”an expansive backyard designed for relaxation and entertainment. The beautifully paved patio surrounds a stunning saltwater in-ground pool, perfect for summer gatherings and quiet evenings alike.

Located in one of Staten Island’s most sought-after neighborhoods, this exceptional home offers the perfect balance of sophistication, comfort, and convenienceโ€”close to top-rated schools, scenic parks, and all major transportation. A true Tottenville gem, this home is the perfect blend of elegance and everyday living.

Features of 139 Finlay Street

MLS® #
2506241
Bedrooms
4
Bathrooms
3
Full Baths
2
Half Baths
1
Acres
0.14
Type
Residential
Price
$1,299,000
Building Sqft
3,500
Year Built
1993
Sub-Type
Single Family - Detached

Exterior

Lot Description
Back

Community Information

Address
139 Finlay Street
City
Staten Island
County
Richmond
State
New York
Zip Code
10307

Listing Information

Agent Name
John Destefano
Agent Office
Re/Max Edge

Listing Map

Get Directions to Property:

At a Glance

139 Finlay Street

Staten Island, NY, 10307

$1,299,000

4 Beds

3 Bathrooms

3,500 Building Sqft

6,305 Lot Sqft

Contact Agent