Skip to content

3 Beds

4 Bathrooms

3,100 Building Sqft

4,200 Lot Sqft

$1,399,000

174 Barbara Street, Staten Island, NY, 10306

About 174 Barbara Street

Active Single Family - Detached

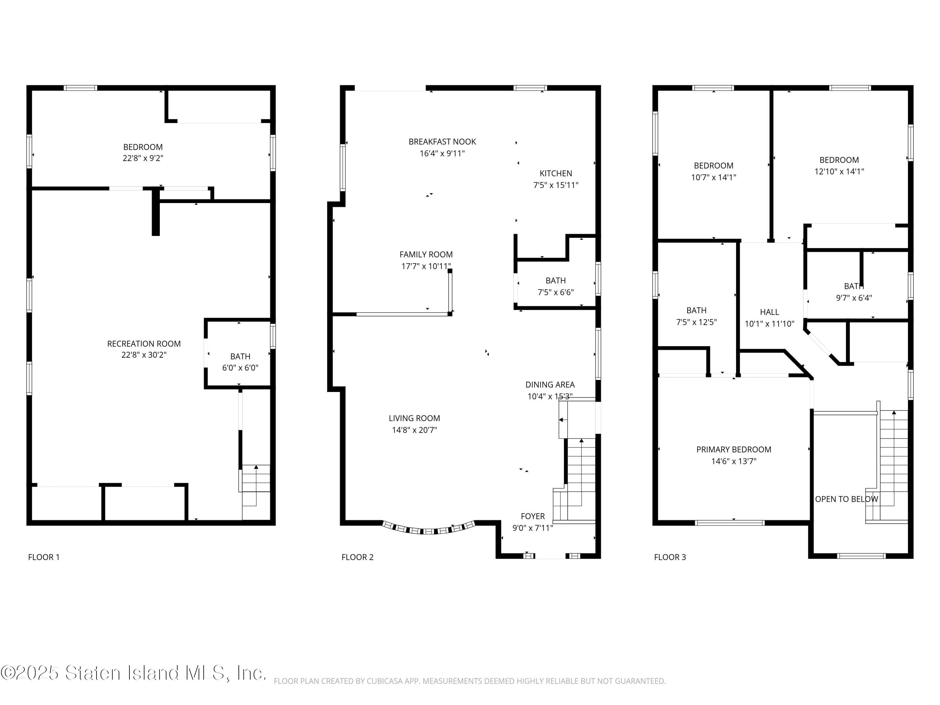
Richmondtown-One Family fully detached beauty, 3 Bedrooms, 3.5 baths, roof raised and the perfect renovation was completed so you can just move right in, First Floor-vaulted ceiling entryway, living room (has gas line for fireplace), dining room, custom kitchen with high end appliances and solid wood cabinets plus a half bath in an open concept layout, sliders to yard, Second Floor-3 well proportioned bedrooms, primary bedroom has en suite full bath, plenty of closets, full bath, super bright and airy, attic for storage, Basement-finished with full bath, nice ceiling height, hardwood floors throughout, gas heat & hot water storage tank, cast iron radiators, updated electric, Anderson windows, central vacuum, split unit AC’s in basement, over sized lot, PRIVATE DRIVEWAY, picture perfect block, over 3000 finished sq. ft. home, close to schools, Lot Size 42’x100′, House Size 26’x45′, Year Built 1955, Taxes 8,028

Features of 174 Barbara Street

MLS® #
2506220
Bedrooms
3
Bathrooms
4
Full Baths
3
Half Baths
1
Acres
0.10
Type
Residential
Price
$1,399,000
Building Sqft
3,100
Year Built
1955
Sub-Type
Single Family - Detached

Exterior

Lot Description
Back, Front, Side

Community Information

Address
174 Barbara Street
City
Staten Island
County
Richmond
State
New York
Zip Code
10306

Listing Information

Agent Name
Anthony Mussolino
Agent Office
Ben Bay Realty Co of SI

Listing Map

Get Directions to Property:

At a Glance

174 Barbara Street

Staten Island, NY, 10306

$1,399,000

3 Beds

4 Bathrooms

3,100 Building Sqft

4,200 Lot Sqft

Contact Agent