Skip to content

3 Beds

2 Bathrooms

1,408 Building Sqft

2,500 Lot Sqft

$689,999

390 Montreal Avenue, Staten Island, NY, 10306

About 390 Montreal Avenue

Active under contract Single Family - Semi-Attached

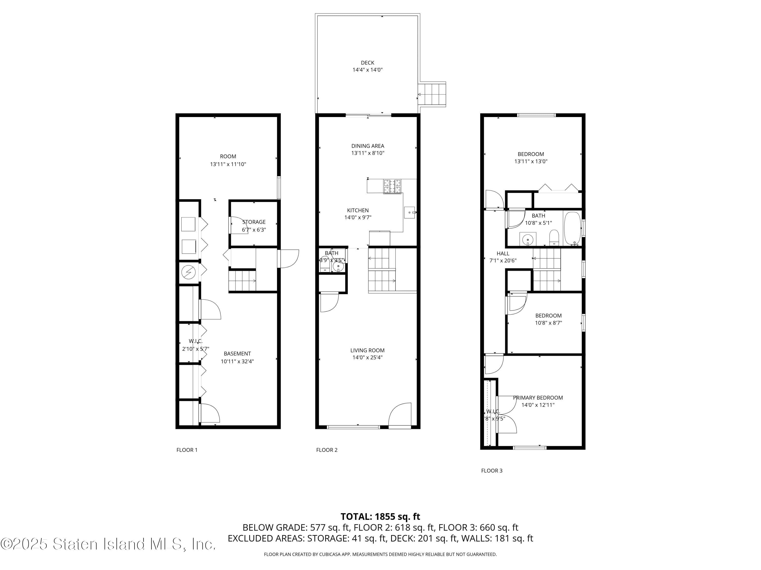
Welcome to this well-kept 3 bedroom, 1.5 bath semi-attached home on a desirable corner lot. The first floor features hardwood floors, a cozy wood-burning fireplace, and an eat-in kitchen with sliding doors that open to a private yard with a deck—perfect for relaxing or entertaining.

A side entrance leads to a finished basement with a washer and dryer, offering great space for a family room, home office, or guests. There’s plenty of closet space throughout, making everyday living comfortable and convenient.

Just steps from Hylan Boulevard, this home offers easy access to Gateway Park, shopping, schools, and transportation. A great opportunity to move right in and enjoy all this prime location has to offer.

Features of 390 Montreal Avenue

MLS® #
2505981
Bedrooms
3
Bathrooms
2
Full Baths
1
Half Baths
1
Acres
0.06
Type
Residential
Price
$689,999
Building Sqft
1,408
Year Built
1978
Sub-Type
Single Family - Semi-Attached

Exterior

Lot Description
Back, Side

Community Information

Address
390 Montreal Avenue
City
Staten Island
County
Richmond
State
New York
Zip Code
10306

Listing Information

Agent Name
Frank Bergen
Agent Office
Re/Max Edge

Listing Map

Get Directions to Property:

At a Glance

390 Montreal Avenue

Staten Island, NY, 10306

$689,999

3 Beds

2 Bathrooms

1,408 Building Sqft

2,500 Lot Sqft

Contact Agent