Skip to content

4 Beds

3 Bathrooms

1,240 Building Sqft

5,500 Lot Sqft

$899,999

453 N Railroad Avenue, Staten Island, NY, 10304

About 453 Railroad Avenue

Pending Single Family - Detached

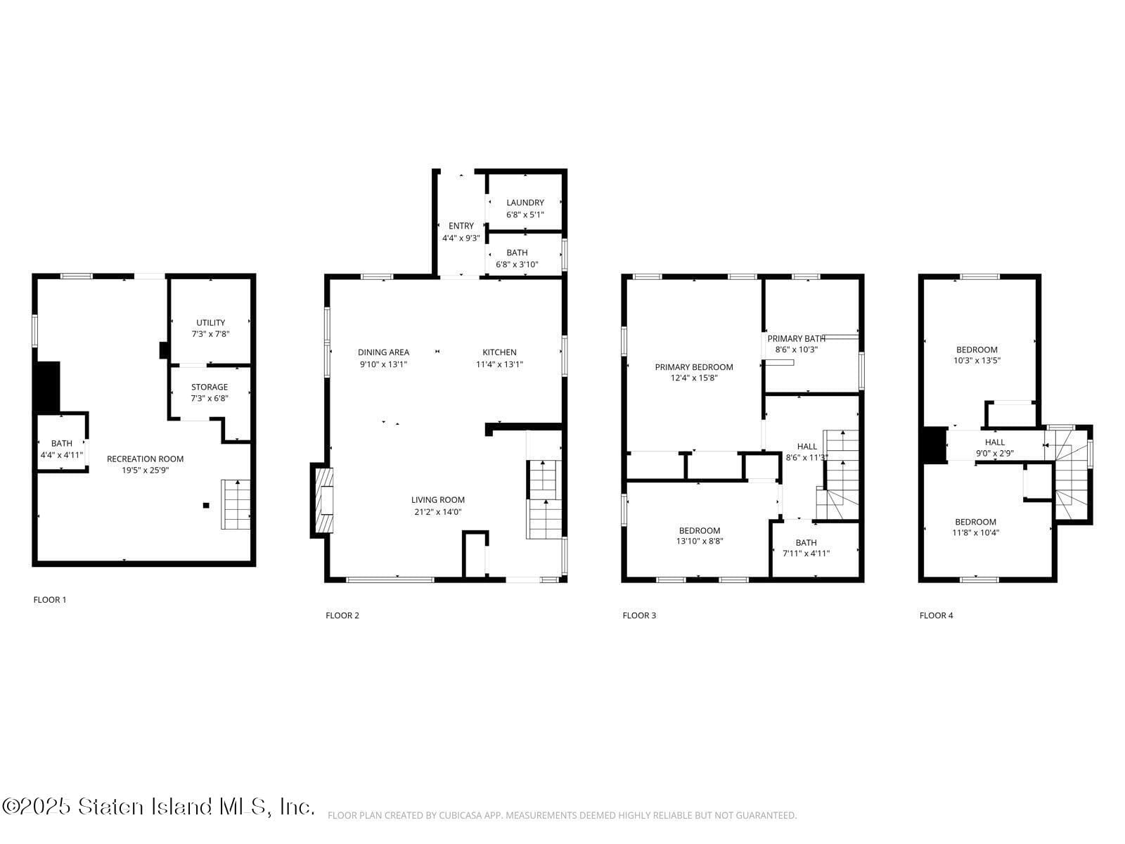
Welcome to 453 N. Railroad Ave, a rare Staten Island gem nestled in the heart of Dongan Hills. This fully detached single‑family home offers a harmonious blend of luxury, functionality, and space across a generous 5,500 sqft lot. With 4 bedrooms, 4 bathrooms, and 2,035 sqft of interior living space, this residence is tailored for comfort and elevated living.
Key Features
โ€ข Radiant heated flooring throughout for year‑round comfort
โ€ข Central A/C system for efficient climate control
โ€ข Central Vacuum system for added convenience
โ€ข Primary ensuite with a soaking tubโ€”your personal retreat
โ€ข Fully finished basement with a separate entrance, ideal for guests or rental potential
โ€ข Detached garage with electric and dual driveways for ample parking
โ€ข Expansive backyard perfect for entertaining, gardening, or relaxing
โ€ข This home offers flexibility: formerly a legal two‑family, it has been opened into a one‑family home through an Alt‑1 filing. The Certificate of Occupancy update is in progress, creating a unique chance for the next owner to customize its future use.
Neighborhood
Dongan Hills is one of Staten Island’s most sought‑after neighborhoods, offering a suburban feel with urban convenience. Located on the East Shore, it’s known for its quiet tree‑lined streets, excellent schools, and easy access to Manhattan via the Staten Island Railway and nearby express buses.
Whether you’re a growing family, investor, or someone seeking a spacious home with modern amenities, this property delivers versatility and long‑term value.

Features of 453 Railroad Avenue

MLS® #
2505866
Bedrooms
4
Bathrooms
3
Full Baths
2
Half Baths
1
Acres
0.13
Type
Residential
Price
$899,999
Building Sqft
1,240
Year Built
1925
Sub-Type
Single Family - Detached

Exterior

Lot Description
Back, Side

Community Information

Address
453 Railroad Avenue
City
Staten Island
County
Richmond
State
New York
Zip Code
10304

Listing Information

Agent Name
Sherif Sadek
Agent Office
Re/Max Edge

Listing Map

Get Directions to Property:

At a Glance

453 N Railroad Avenue

Staten Island, NY, 10304

$899,999

4 Beds

3 Bathrooms

1,240 Building Sqft

5,500 Lot Sqft

Contact Agent