Skip to content

6 Beds

10 Bathrooms

6,750 Building Sqft

21,245 Lot Sqft

$3,500,000

70 Jenna Lane, Staten Island, NY, 10304

About 70 Jenna Lane

Hold Single Family - Detached

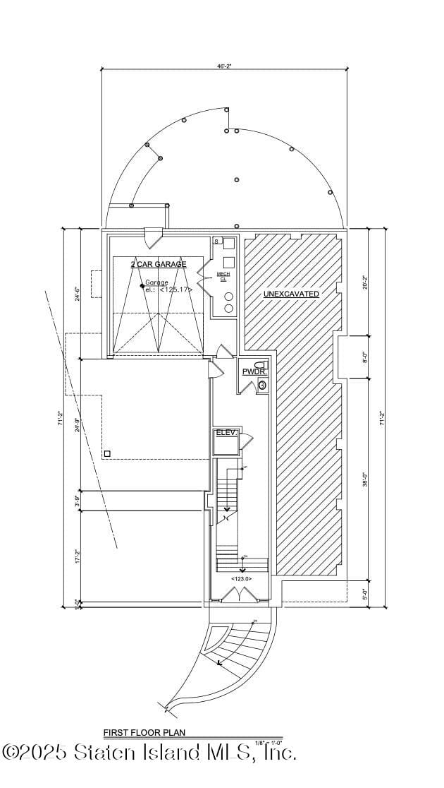
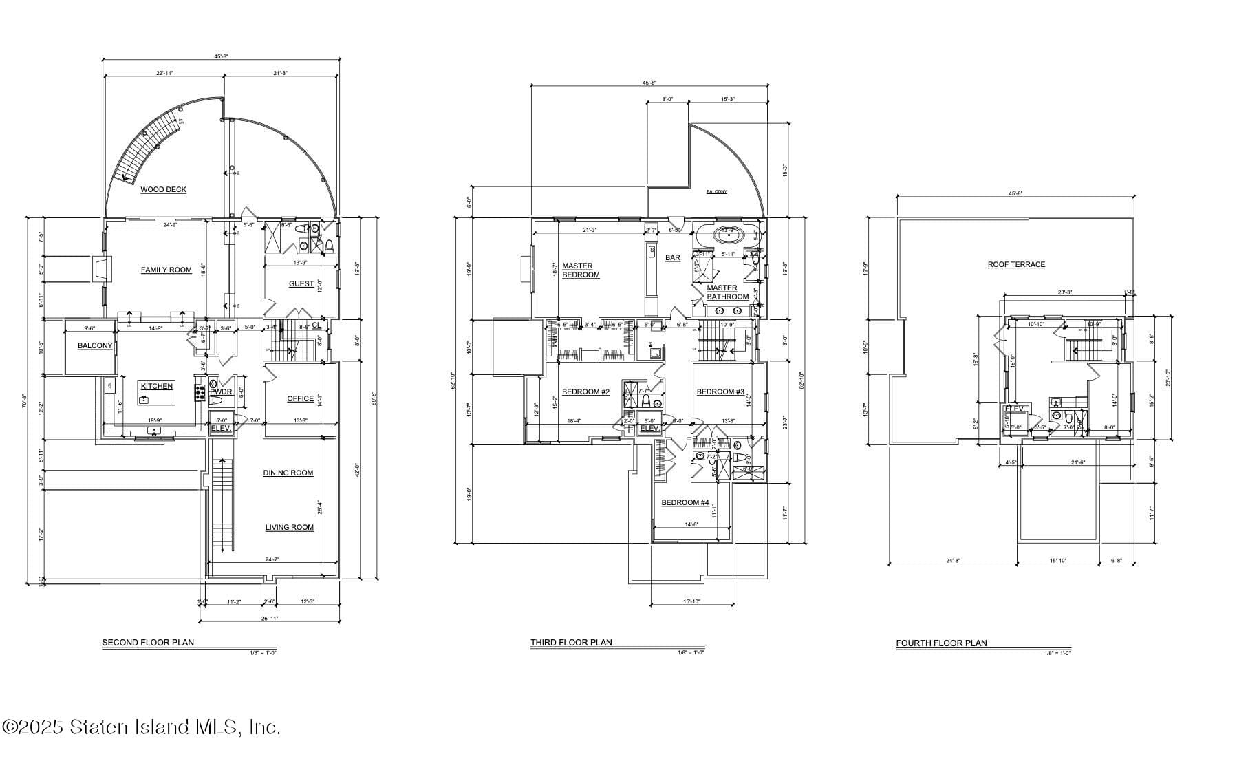
This is a rare opportunity to live in a truly one of kind magnificent custom contemporary mansion located on a quiet, private gated cul-de-sac in the prestigious Forest Manor Estates of Todt Hill. iddealically situated on a immense 21,245 square foot (0.488 acre) hillside property, this exceptional residence is shortly to be built and offers the chance to step in and complete your dream home. The design incorporates multiple levels that seamlessly walk out to a tranquil backyard, making the most of the natural terrain. This is the last undeveloped parcel in this exclusive community, which features just four other grand homes. The location is ideal—just above Richmond Road’s popular dining and shopping district—with direct access to city bus transportation. Planned as almost a NET 7,000 square foot contemporary residence, the home can includes an elevator from the garage level to the rooftop. It offers five spacious bedrooms, 5 full, 1three-quarter and 2 half bathrooms, a private office, and a rooftop studio complete with 1400 sft magnificent terrace with magnificent 180 degree views of the Narrows to the Atlantic highlands. Agent is owner. The main level boasts a formal open-concept living and dining room, an oversized chef’s kitchen with an informal dining area, a walk-in pantry, and a terrace. The family room that connects to the the kitchen, features 20 linear feet of glass sliding doors that open to an expansive patio and serene backyard, creating a seamless indoor-outdoor living experience. These beautiful views are also visible from the kitchen. This floor also includes a guest suite, a private office, and a laundry closet and a 2 powder rooms. On the second floor, the luxurious primary suite features picture windows overlooking the peaceful, wooded yard, a large private deck that can have a custom built in ground pool , spacious co-walk-in closet offering over 200 square feet of storage, a spacious en-suite bathroom, and a lounging area that can be outfitted with a coffee bar. Also on this level are three additional large bedrooms each with ample walk in closet space and its own en-suite bathroom. The third floor rooftop studio is a flexible space that can be used as a movie room, gym, yoga studio, music room, playroom, or additional guest area. It includes an auxiliary kitchen, a three-quarter bathroom, and opens to an impressive 600 square foot private green space – perfect for entertaining while enjoying clear views of the majestic Verrazano Bridge.

****Please note that all sizes, renderings and depictions are approximate and are not the final offerings. All zoning, existing square footage and available buildable square permitted uses and any other information provided herein must be independently verified.*****

Features of 70 Jenna Lane

MLS® #
2502385
Bedrooms
6
Bathrooms
10
Full Baths
5
Half Baths
2
Acres
0.49
Type
Residential
Price
$3,500,000
Building Sqft
6,750
Year Built
2026
Sub-Type
Single Family - Detached

Exterior

Lot Description
Back, Front, Side

Community Information

Address
70 Jenna Lane
City
Staten Island
County
Richmond
State
New York
Zip Code
10304

Listing Information

Agent Name
Denise Schneider
Agent Office
Schneider Realty Services

Listing Map

Get Directions to Property:

At a Glance

70 Jenna Lane

Staten Island, NY, 10304

$3,500,000

6 Beds

10 Bathrooms

6,750 Building Sqft

21,245 Lot Sqft

Contact Agent